Woning Randhoeve 223208 Houten

Randhoeve 223-208, 3995GA Houten

Ontvang updates voor Hoeven

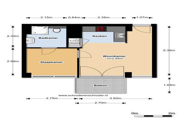
Het adres van deze woning uit 2014 is Randhoeve 223208 te Houten. Het pand heeft een oppervlakte van 35m² en heeft 2 kamers kamers waarvan 1 slaapkamers. De geschatte waarde van deze woning is € 139.500.

Bekijk alle woningen in Hoeven

Gegevens van Portiekwoning (appartement)

Bouwjaar
2014
Geschatte waarde
€ 139.500
Oppervlakte
35 m2
Inhoud
117 m3
Aantal kamers
2 kamers
Slaapkamers
1
Badkamers
1 badkamer
Soort bouw
Bestaande bouw
Eigendomssituatie
Volle eigendom
Ligging
In woonwijk

Voorzieningen in de buurt

Boodschappen1,3 km
Grote supermarkt1,1 km
Cafetaria1,4 km
Restaurant1,3 km
Huisarts1,4 km
Ziekenhuis2,5 km
Kinderdagverblijf0,8 km
BSO1,5 km
Alle voorzieningen in Hoeven

Binnenkijken bij Randhoeve 223208 te Houten

Meer meldingen in deze omgeving

Nieuw bedrijf
December 2025
Dijkhoeve 706, 3992XV Houten

Binnenkijken bij
Woensdag 3-12-2025
Wagenhoeve 37, 3992PB Houten

Faillissement
Dinsdag 2-12-2025
Schuilhoeve 43, 3992NC Houten

112 melding
Vrijdag 28-11-2025 om 14:23
Wagenhoeve, Houten

Nieuw bedrijf
November 2025
Melkhoeve 37, 3992XS Houten

Binnenkijken bij
Dinsdag 18-11-2025
Randhoeve 223403, 3995GA Houten

Binnenkijken bij
Zondag 16-11-2025
Jachthoeve 47, 3992NT Houten

Nieuw bedrijf
November 2025
Melkhoeve 55, 3992XS Houten

Direct een e-mail ontvangen bij nieuwe meldingen in deze regio?

Meld je dan GRATIS aan voor de Oozo Alert service voor Hoeven

Instellen

Meer nieuws in Hoeven

Weten hoe eenvoudig het is om af te vallen? Zonder pillen en smeersels en zonder je in het zweet te werken!
Kijk op eenvoudig-afvallen.nl

© 2012 - 2025 OOZO.nl - info@oozo.nl - Gegevens verwijderen? | Disclaimer | Privacy statement