Woning Randhoeve 27 Houten

Randhoeve 27, 3992XA Houten

Ontvang updates voor Hoeven

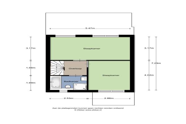
Het adres van deze woning uit 1984 is Randhoeve 27 te Houten. Het pand heeft 4 kamers kamers waarvan 3 slaapkamers. De geschatte waarde van deze woning is € 350.000.

Bekijk alle woningen in Hoeven

Gegevens van Eengezinswoning, tussenwoning

Bouwjaar
1984
Geschatte waarde
€ 350.000
Oppervlakte
0 m2
Inhoud
440 m3
Aantal kamers
4 kamers
Slaapkamers
3
Badkamers
1 badkamer en 1 apart toilet
Soort bouw
Bestaande bouw
Eigendomssituatie
Volle eigendom
Ligging
In woonwijk en beschutte ligging
Tuin
Achtertuin en voortuin
Achtertuin
72 m² (12m diep en 6m breed)

Voorzieningen in de buurt

Boodschappen1,3 km
Grote supermarkt1,1 km
Cafetaria1,4 km
Restaurant1,3 km
Huisarts1,4 km
Ziekenhuis2,5 km
Kinderdagverblijf0,8 km
BSO1,5 km
Alle voorzieningen in Hoeven

Binnenkijken bij Randhoeve 27 te Houten

Meer meldingen in deze omgeving

Nieuw bedrijf
Maart 2026
Tiendhoeve 28, 3992NM Houten

Faillissement
Donderdag 26-2-2026
Schuilhoeve 43, 3992NC Houten

Binnenkijken bij
Zondag 22-2-2026
Griendhoeve 4, 3992PM Houten

Binnenkijken bij
Zondag 1-2-2026
Dijkhoeve 502, 3992XV Houten

Binnenkijken bij
Dinsdag 27-1-2026
Paardenhoeve 100, 3992PK Houten

Nieuw bedrijf
Januari 2026
Kalverhoeve 41, 3992NX Houten

Binnenkijken bij
Dinsdag 23-12-2025
Graanhoeve 38, 3992NK Houten

Nieuw bedrijf
December 2025
Dijkhoeve 706, 3992XV Houten

Direct een e-mail ontvangen bij nieuwe meldingen in deze regio?

Meld je dan GRATIS aan voor de Oozo Alert service voor Hoeven

Instellen

Meer nieuws in Hoeven

Weten hoe eenvoudig het is om af te vallen? Zonder pillen en smeersels en zonder je in het zweet te werken!
Kijk op eenvoudig-afvallen.nl

© 2012 - 2026 OOZO.nl - info@oozo.nl - Gegevens verwijderen? | Disclaimer | Privacy statement