Woning Herikhof 4 Houten

Herikhof 4, 3991GT Houten

Ontvang updates voor Hoven

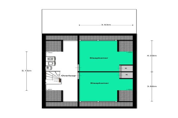
Het adres van deze woning uit 1977 is Herikhof 4 te Houten. Het pand heeft een oppervlakte van 169m² en een perceeloppervlakte van 175m² en heeft 6 kamers kamers waarvan 5 slaapkamers. De geschatte waarde van deze woning is € 295.000.

Bekijk alle woningen in Hoven

Gegevens van Eengezinswoning, tussenwoning

Bouwjaar
1977
Geschatte waarde
€ 295.000
Oppervlakte
169 m2
Inhoud
516 m3
Aantal kamers
6 kamers
Slaapkamers
5
Badkamers
1 badkamer en 1 apart toilet
Soort bouw
Bestaande bouw
Eigendomssituatie
Volle eigendom
Ligging
In woonwijk
Tuin
Achtertuin en voortuin
Achtertuin
66 m² (13m diep en 5,1m breed)

Voorzieningen in de buurt

Boodschappen0,5 km
Grote supermarkt0,6 km
Cafetaria0,7 km
Restaurant0,6 km
Huisarts0,7 km
Ziekenhuis1,7 km
Kinderdagverblijf0,2 km
BSO0,8 km
Alle voorzieningen in Hoven

Binnenkijken bij Herikhof 4 te Houten

Meer meldingen in deze omgeving

Binnenkijken bij
Zondag 1-2-2026
Dovenetelhof 1, 3991GA Houten

Nieuw bedrijf
Januari 2026
Hoefbladhof 20, 3991GH Houten

Nieuw bedrijf
Januari 2026
Herikhof 3, 3991GT Houten

Nieuw bedrijf
December 2025
Boterbloemhof 29, 3991GR Houten

Nieuw bedrijf
December 2025
Akkerwindehof 2, 3991HC Houten

Binnenkijken bij
Zaterdag 20-12-2025
Speenkruidhof 13, 3991GM Houten

Faillissement
Dinsdag 11-11-2025
Klaprooshof 10, 3991GP Houten

Binnenkijken bij
Woensdag 29-10-2025
Hoefbladhof 86, 3991GJ Houten

Direct een e-mail ontvangen bij nieuwe meldingen in deze regio?

Meld je dan GRATIS aan voor de Oozo Alert service voor Hoven

Instellen

Meer nieuws in Hoven

Weten hoe eenvoudig het is om af te vallen? Zonder pillen en smeersels en zonder je in het zweet te werken!
Kijk op eenvoudig-afvallen.nl

© 2012 - 2026 OOZO.nl - info@oozo.nl - Gegevens verwijderen? | Disclaimer | Privacy statement