Woning Prins Bernhardweg 38 Houten

Prins Bernhardweg 38, 3991DE Houten

Ontvang updates voor Oude Dorp

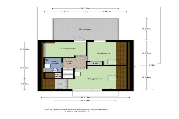
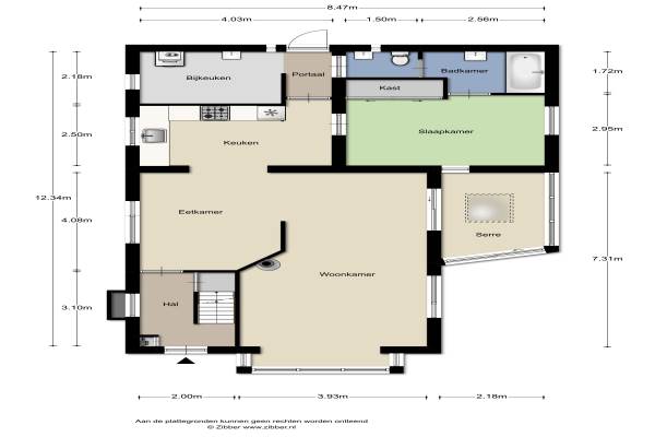
Het adres van deze woning uit 1935 is Prins Bernhardweg 38 te Houten. Het pand heeft een oppervlakte van 135m² en een perceeloppervlakte van 997m² en heeft 5 kamers kamers waarvan 4 slaapkamers. De geschatte waarde van deze woning is € 775.000.

Bekijk alle woningen in Oude Dorp

Gegevens van Villa, vrijstaande woning

Bouwjaar
1935
Geschatte waarde
€ 775.000
Oppervlakte
135 m2
Inhoud
529 m3
Aantal kamers
5 kamers
Slaapkamers
4
Badkamers
2 badkamers en 1 apart toilet
Soort bouw
Bestaande bouw
Eigendomssituatie
Volle eigendom
Ligging
Aan rustige weg, in woonwijk en vrij uitzicht
Tuin
Tuin rondom

Voorzieningen in de buurt

Boodschappen0,4 km
Grote supermarkt0,4 km
Cafetaria0,4 km
Restaurant0,4 km
Huisarts0,6 km
Ziekenhuis1,5 km
Kinderdagverblijf0,4 km
BSO0,5 km
Alle voorzieningen in Oude Dorp

Binnenkijken bij Prins Bernhardweg 38 te Houten

Meer meldingen in deze omgeving

112 melding
Donderdag 16-4-2026 om 13:46
Prins Bernhardweg, 3991DE Houten

Binnenkijken bij
Donderdag 16-4-2026
Burgemeester Haefkensstraat 39, 3991DB Houten

Nieuw bedrijf
April 2026
Prins Bernhardweg 69, 3991DE Houten

Nieuw bedrijf
April 2026
Prins Bernhardweg 69, 3991DE Houten

Binnenkijken bij
Dinsdag 31-3-2026
Prins Willem de Zwijgerlaan 2, 3991BR Houten

Binnenkijken bij
Zondag 29-3-2026
Plein 10, 3991DK Houten

Binnenkijken bij
Zondag 29-3-2026
Kolensteeg 2, 3991DA Houten

Binnenkijken bij
Zondag 29-3-2026
Koningin Wilhelminaweg 14, 3991DT Houten

Direct een e-mail ontvangen bij nieuwe meldingen in deze regio?

Meld je dan GRATIS aan voor de Oozo Alert service voor Oude Dorp

Instellen

Meer nieuws in Oude Dorp

Weten hoe eenvoudig het is om af te vallen? Zonder pillen en smeersels en zonder je in het zweet te werken!
Kijk op eenvoudig-afvallen.nl

© 2012 - 2026 OOZO.nl - info@oozo.nl - Gegevens verwijderen? | Disclaimer | Privacy statement