Woning Guldenslag 7 Houten

Guldenslag 7, 3991WB Houten

Ontvang updates voor Slagen

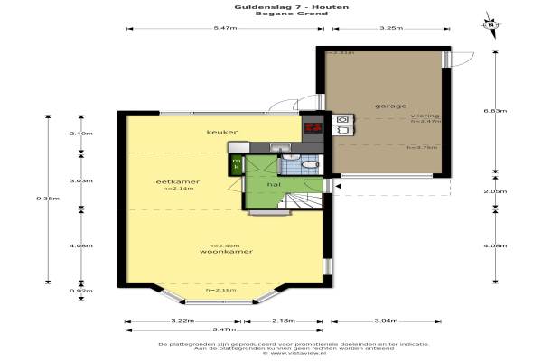
Het adres van deze woning uit 1989 is Guldenslag 7 te Houten. Het pand heeft een oppervlakte van 118m² en een perceeloppervlakte van 310m² en heeft 4 kamers kamers waarvan 3 slaapkamers. De geschatte waarde van deze woning is € 417.000.

Bekijk alle woningen in Slagen

Gegevens van Eengezinswoning, 2-onder-1-kapwoning

Bouwjaar
1989
Geschatte waarde
€ 417.000
Oppervlakte
118 m2
Inhoud
501 m3
Aantal kamers
4 kamers
Slaapkamers
3
Badkamers
1 badkamer en 2 aparte toiletten
Soort bouw
Bestaande bouw
Eigendomssituatie
Volle eigendom
Ligging
In woonwijk
Tuin
Achtertuin en voortuin
Achtertuin
160 m² (16m diep en 10m breed)

Voorzieningen in de buurt

Boodschappen1,0 km
Grote supermarkt1,0 km
Cafetaria1,2 km
Restaurant1,0 km
Huisarts1,5 km
Ziekenhuis2,5 km
Kinderdagverblijf0,4 km
BSO0,3 km
Alle voorzieningen in Slagen

Binnenkijken bij Guldenslag 7 te Houten

Meer meldingen in deze omgeving

Nieuw bedrijf
December 2025
Muntslag 33, 3991WT Houten

112 melding
Zondag 14-12-2025 om 22:46
Rijderslag, 3991TT Houten

112 melding
Zondag 14-12-2025 om 22:45
Rijderslag, 3991TT Houten

112 melding
Zondag 30-11-2025 om 18:09
Florijnslag, Houten

Binnenkijken bij
Woensdag 19-11-2025
Grootslag 71, 3991RB Houten

Binnenkijken bij
Dinsdag 11-11-2025
Stuiverslag 1, 3991TX Houten

112 melding
Zondag 2-11-2025 om 15:56
Dukaatslag, Houten

112 melding
Zondag 2-11-2025 om 15:39
Nobelslag, Houten

Direct een e-mail ontvangen bij nieuwe meldingen in deze regio?

Meld je dan GRATIS aan voor de Oozo Alert service voor Slagen

Instellen

Meer nieuws in Slagen

Weten hoe eenvoudig het is om af te vallen? Zonder pillen en smeersels en zonder je in het zweet te werken!
Kijk op eenvoudig-afvallen.nl

© 2012 - 2025 OOZO.nl - info@oozo.nl - Gegevens verwijderen? | Disclaimer | Privacy statement