Woning Guldenslag 105 Houten

Guldenslag 105, 3991WE Houten

Ontvang updates voor Slagen

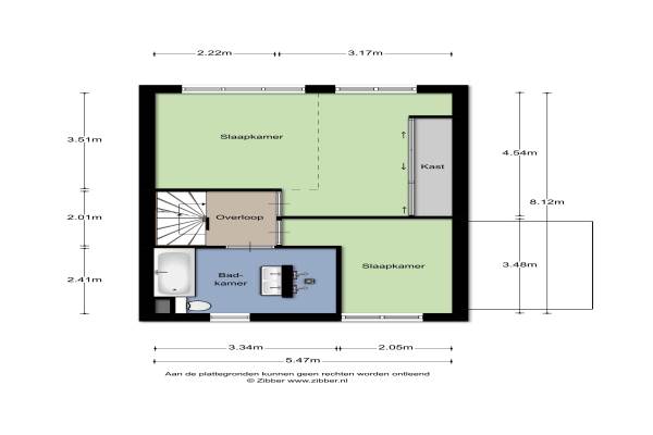
Het adres van deze woning uit 1989 is Guldenslag 105 te Houten. Het pand heeft een oppervlakte van 122m² en een perceeloppervlakte van 197m² en heeft 5 kamers kamers waarvan 4 slaapkamers. De geschatte waarde van deze woning is € 350.000.

Bekijk alle woningen in Slagen

Gegevens van Eengezinswoning, hoekwoning

Bouwjaar
1989
Geschatte waarde
€ 350.000
Oppervlakte
122 m2
Inhoud
438 m3
Aantal kamers
5 kamers
Slaapkamers
4
Badkamers
1 badkamer en 1 apart toilet
Soort bouw
Bestaande bouw
Eigendomssituatie
Volle eigendom
Ligging
Aan rustige weg, in woonwijk en vrij uitzicht
Tuin
Achtertuin, voortuin en zijtuin
Achtertuin
104 m² (13m diep en 8m breed)

Voorzieningen in de buurt

Boodschappen1,0 km
Grote supermarkt1,0 km
Cafetaria1,2 km
Restaurant1,0 km
Huisarts1,5 km
Ziekenhuis2,5 km
Kinderdagverblijf0,4 km
BSO0,3 km
Alle voorzieningen in Slagen

Binnenkijken bij Guldenslag 105 te Houten

Meer meldingen in deze omgeving

Nieuw bedrijf
December 2025
Muntslag 33, 3991WT Houten

112 melding
Zondag 14-12-2025 om 22:46
Rijderslag, 3991TT Houten

112 melding
Zondag 14-12-2025 om 22:45
Rijderslag, 3991TT Houten

112 melding
Zondag 30-11-2025 om 18:09
Florijnslag, Houten

Binnenkijken bij
Woensdag 19-11-2025
Grootslag 71, 3991RB Houten

Binnenkijken bij
Dinsdag 11-11-2025
Stuiverslag 1, 3991TX Houten

112 melding
Zondag 2-11-2025 om 15:56
Dukaatslag, Houten

112 melding
Zondag 2-11-2025 om 15:39
Nobelslag, Houten

Direct een e-mail ontvangen bij nieuwe meldingen in deze regio?

Meld je dan GRATIS aan voor de Oozo Alert service voor Slagen

Instellen

Meer nieuws in Slagen

Weten hoe eenvoudig het is om af te vallen? Zonder pillen en smeersels en zonder je in het zweet te werken!
Kijk op eenvoudig-afvallen.nl

© 2012 - 2025 OOZO.nl - info@oozo.nl - Gegevens verwijderen? | Disclaimer | Privacy statement