Woning Stam 75 Huizen

Stam 75, 1275CG Huizen

Ontvang updates voor Bijvanck West

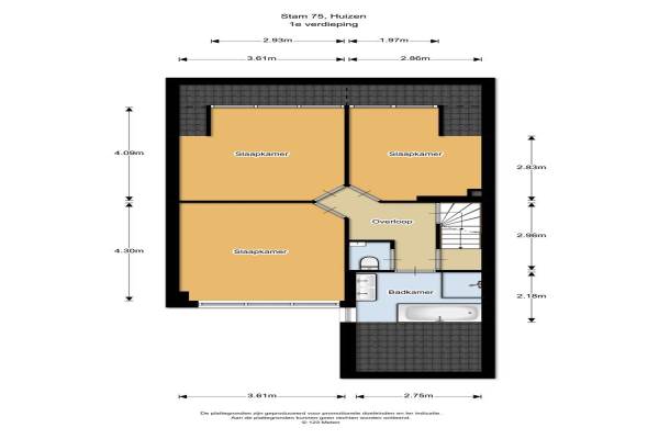
Het adres van deze woning uit 1980 is Stam 75 te Huizen. Het pand heeft een oppervlakte van 150m² en een perceeloppervlakte van 250m² en heeft 5 kamers kamers waarvan 4 slaapkamers. De geschatte waarde van deze woning is € 450.000.

Bekijk alle woningen in Bijvanck West

Gegevens van Eengezinswoning, tussenwoning

Bouwjaar
1980
Geschatte waarde
€ 450.000
Oppervlakte
150 m2
Inhoud
519 m3
Aantal kamers
5 kamers
Slaapkamers
4
Badkamers
1 badkamer en 2 aparte toiletten
Soort bouw
Bestaande bouw
Eigendomssituatie
Volle eigendom
Ligging
Aan park, aan rustige weg en in woonwijk
Tuin
Achtertuin en voortuin
Achtertuin
119 m² (17m diep en 7m breed)

Voorzieningen in de buurt

Boodschappen0,5 km
Grote supermarkt0,5 km
Cafetaria0,6 km
Restaurant0,4 km
Huisarts0,4 km
Ziekenhuis6,4 km
Kinderdagverblijf0,3 km
BSO0,3 km
Alle voorzieningen in Bijvanck West

Binnenkijken bij Stam 75 te Huizen

Meer meldingen in deze omgeving

Binnenkijken bij
Zaterdag 15-11-2025
Stobbe 81, 1275CA Huizen

Binnenkijken bij
Dinsdag 11-11-2025
Stam 81, 1275CG Huizen

Binnenkijken bij
Donderdag 30-10-2025
Stam 23, 1275CD Huizen

Binnenkijken bij
Zaterdag 11-10-2025
Hoofdweg 65, 1275AA Huizen

Binnenkijken bij
Zaterdag 12-7-2025
Grondel 45, 1275BE Huizen

Binnenkijken bij
Maandag 7-7-2025
Kruin 13, 1275AX Huizen

Faillissement
Woensdag 2-7-2025
Groenhof 9, 1275BB Huizen

Binnenkijken bij
Vrijdag 13-6-2025
Bloesem 12A, 1275BD Huizen

Direct een e-mail ontvangen bij nieuwe meldingen in deze regio?

Meld je dan GRATIS aan voor de Oozo Alert service voor Bijvanck West

Instellen

Meer nieuws in Bijvanck West

Weten hoe eenvoudig het is om af te vallen? Zonder pillen en smeersels en zonder je in het zweet te werken!
Kijk op eenvoudig-afvallen.nl

© 2012 - 2025 OOZO.nl - info@oozo.nl - Gegevens verwijderen? | Disclaimer | Privacy statement