Woning Vissersstraat 9C Huizen

Vissersstraat 9C, 1271VE Huizen

Ontvang updates voor De Noord

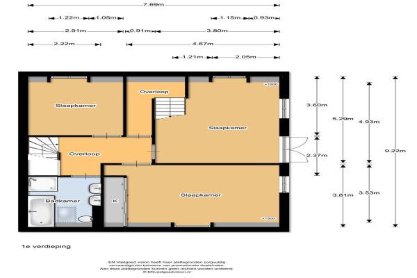
Het adres van deze woning uit 1895 is Vissersstraat 9C te Huizen. Het pand heeft een oppervlakte van 164m² en een perceeloppervlakte van 212m² en heeft 5 kamers kamers waarvan 4 slaapkamers. De geschatte waarde van deze woning is € 599.500.

Bekijk alle woningen in De Noord

Gegevens van Eengezinswoning, 2-onder-1-kapwoning

Bouwjaar
1895
Geschatte waarde
€ 599.500
Oppervlakte
164 m2
Inhoud
632 m3
Aantal kamers
5 kamers
Slaapkamers
4
Badkamers
1 badkamer en 1 apart toilet
Soort bouw
Bestaande bouw
Eigendomssituatie
Volle eigendom
Ligging
In centrum en in woonwijk
Tuin
Achtertuin, voortuin en zijtuin
Achtertuin
58 m² (12m diep en 4,8m breed)

Voorzieningen in de buurt

Boodschappen0,4 km
Grote supermarkt0,4 km
Cafetaria0,3 km
Restaurant0,4 km
Huisarts0,7 km
Ziekenhuis4,8 km
Kinderdagverblijf0,3 km
BSO0,4 km
Alle voorzieningen in De Noord

Binnenkijken bij Vissersstraat 9C te Huizen

Meer meldingen in deze omgeving

Binnenkijken bij
Zaterdag 29-11-2025
Piet Prinsstraat 3, 1271XD Huizen

Nieuw bedrijf
November 2025
Meentweg 27, 1271PV Huizen

Nieuw bedrijf
November 2025
Noorderweg 7, 1271VK Huizen

Binnenkijken bij
Vrijdag 21-11-2025
Boerensteeg 10, 1271RV Huizen

Nieuw bedrijf
November 2025
Bestevaer 44a, 1271XZ Huizen

Binnenkijken bij
Dinsdag 18-11-2025
Langestraat 32, 1271RB Huizen

Binnenkijken bij
Zondag 16-11-2025
Karel Doormanlaan 82, 1271CD Huizen

112 melding
Zaterdag 15-11-2025 om 18:20
Magdaleenweg, Huizen

Direct een e-mail ontvangen bij nieuwe meldingen in deze regio?

Meld je dan GRATIS aan voor de Oozo Alert service voor De Noord

Instellen

Meer nieuws in De Noord

Weten hoe eenvoudig het is om af te vallen? Zonder pillen en smeersels en zonder je in het zweet te werken!
Kijk op eenvoudig-afvallen.nl

© 2012 - 2025 OOZO.nl - info@oozo.nl - Gegevens verwijderen? | Disclaimer | Privacy statement