Woning Achterbaan 59 Huizen

Achterbaan 59, 1271WP Huizen

Ontvang updates voor De Noord

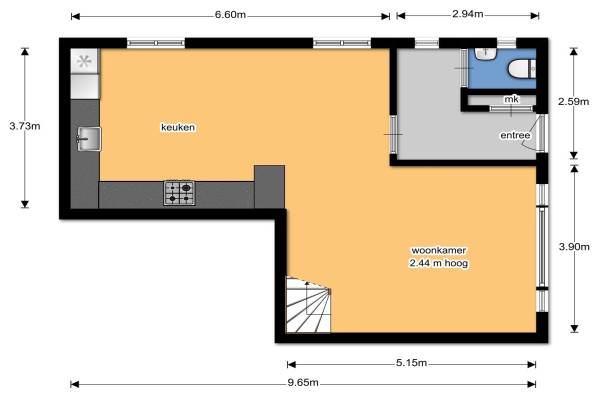
Het adres van deze woning is Achterbaan 59 te Huizen. Het pand heeft een oppervlakte van 82m² en een perceeloppervlakte van 263m² en heeft 4 kamers kamers waarvan 3 slaapkamers. De geschatte waarde van deze woning is € 349.000.

Bekijk alle woningen in De Noord

Gegevens van Eengezinswoning, hoekwoning

Geschatte waarde
€ 349.000
Oppervlakte
82 m2
Inhoud
370 m3
Aantal kamers
4 kamers
Slaapkamers
3
Badkamers
1 badkamer en 1 apart toilet
Soort bouw
Bestaande bouw
Eigendomssituatie
Volle eigendom
Ligging
In centrum
Tuin
Voortuin

Voorzieningen in de buurt

Boodschappen0,4 km
Grote supermarkt0,4 km
Cafetaria0,3 km
Restaurant0,4 km
Huisarts0,7 km
Ziekenhuis4,8 km
Kinderdagverblijf0,3 km
BSO0,4 km
Alle voorzieningen in De Noord

Binnenkijken bij Achterbaan 59 te Huizen

Meer meldingen in deze omgeving

Binnenkijken bij
Zondag 16-11-2025
Karel Doormanlaan 82, 1271CD Huizen

112 melding
Zaterdag 15-11-2025 om 18:20
Magdaleenweg, Huizen

Nieuw bedrijf
November 2025
Bestevaer 44a, 1271XZ Huizen

Nieuw bedrijf
November 2025
Noorderweg 41, 1271VL Huizen

Nieuw bedrijf
November 2025
Middenweg 33, 1271AS Huizen

Nieuw bedrijf
November 2025
Middenweg 33, 1271AS Huizen

Binnenkijken bij
Dinsdag 11-11-2025
Zeeweg 48, 1271VZ Huizen

Binnenkijken bij
Dinsdag 11-11-2025
De Ruyterstraat 49, 1271ST Huizen

Direct een e-mail ontvangen bij nieuwe meldingen in deze regio?

Meld je dan GRATIS aan voor de Oozo Alert service voor De Noord

Instellen

Meer nieuws in De Noord

Weten hoe eenvoudig het is om af te vallen? Zonder pillen en smeersels en zonder je in het zweet te werken!
Kijk op eenvoudig-afvallen.nl

© 2012 - 2025 OOZO.nl - info@oozo.nl - Gegevens verwijderen? | Disclaimer | Privacy statement