Woning Ceintuurbaan 63 Huizen

Ceintuurbaan 63, 1271BG Huizen

Ontvang updates voor De Zuid

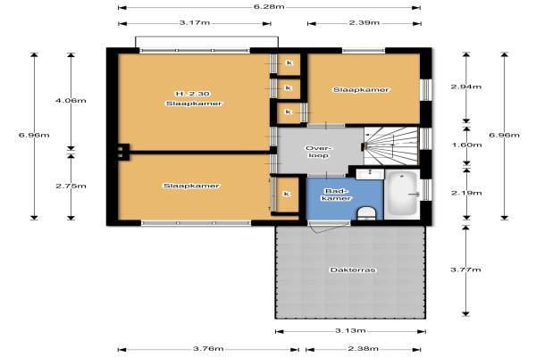
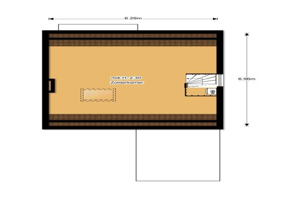
Het adres van deze woning is Ceintuurbaan 63 te Huizen. Het pand heeft een oppervlakte van 117m² en een perceeloppervlakte van 245m² en heeft 5 kamers kamers waarvan 4 slaapkamers. De geschatte waarde van deze woning is € 425.000.

Bekijk alle woningen in De Zuid

Gegevens van Eengezinswoning, 2-onder-1-kapwoning

Geschatte waarde
€ 425.000
Oppervlakte
117 m2
Inhoud
427 m3
Aantal kamers
5 kamers
Slaapkamers
4
Badkamers
1 badkamer en 1 apart toilet
Soort bouw
Bestaande bouw
Eigendomssituatie
Volle eigendom
Ligging
Aan drukke weg en in woonwijk
Tuin
Achtertuin, voortuin en zonneterras
Achtertuin
90 m² (10m diep en 9m breed)

Voorzieningen in de buurt

Boodschappen0,3 km
Grote supermarkt0,4 km
Cafetaria0,4 km
Restaurant0,5 km
Huisarts0,4 km
Ziekenhuis4,6 km
Kinderdagverblijf0,4 km
BSO0,8 km
Alle voorzieningen in De Zuid

Binnenkijken bij Ceintuurbaan 63 te Huizen

Meer meldingen in deze omgeving

Nieuw bedrijf
Oktober 2025
Hendrick de Keyserstraat 9, 1271LN Huizen

Nieuw bedrijf
Oktober 2025
Langestraat 40, 1271RC Huizen

Nieuw bedrijf
Oktober 2025
Koningin Wilhelminastraat 14, 1271PH Huizen

Nieuw bedrijf
Oktober 2025
Gooilandweg 78, 1271KZ Huizen

Binnenkijken bij
Zaterdag 27-9-2025
Koningin Wilhelminastraat 5, 1271PE Huizen

Binnenkijken bij
Maandag 22-9-2025
Smallelaan 3, 1271PD Huizen

Binnenkijken bij
Maandag 22-9-2025
Langestraat 58, 1271RC Huizen

Binnenkijken bij
Maandag 22-9-2025
Lindenlaan 52, 1271BB Huizen

Direct een e-mail ontvangen bij nieuwe meldingen in deze regio?

Meld je dan GRATIS aan voor de Oozo Alert service voor De Zuid

Instellen

Meer nieuws in De Zuid

Weten hoe eenvoudig het is om af te vallen? Zonder pillen en smeersels en zonder je in het zweet te werken!
Kijk op eenvoudig-afvallen.nl

© 2012 - 2025 OOZO.nl - info@oozo.nl - Gegevens verwijderen? | Disclaimer | Privacy statement