Woning Van Driellaan 5 Huizen

Van Driellaan 5, 1272KE Huizen

Ontvang updates voor Zuidereng

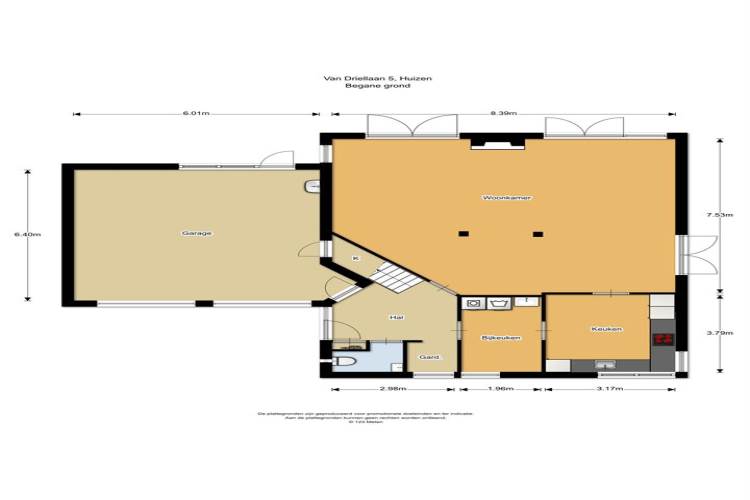
Het adres van deze woning uit 1990 is Van Driellaan 5 te Huizen. Het pand heeft een oppervlakte van 168m² en een perceeloppervlakte van 740m² en heeft 5 kamers kamers waarvan 4 slaapkamers. De geschatte waarde van deze woning is € 969.000.

Bekijk alle woningen in Zuidereng

Gegevens van Villa, geschakelde woning

Bouwjaar
1990
Geschatte waarde
€ 969.000
Oppervlakte
168 m2
Inhoud
758 m3
Aantal kamers
5 kamers
Slaapkamers
4
Badkamers
2 badkamers en 1 apart toilet
Soort bouw
Bestaande bouw
Eigendomssituatie
Volle eigendom
Ligging
Aan rustige weg
Tuin
Achtertuin, voortuin en zijtuin
Achtertuin
340 m² (17,6m diep en 19,3m breed)

Voorzieningen in de buurt

Boodschappen0,6 km
Grote supermarkt0,8 km
Cafetaria0,7 km
Restaurant0,4 km
Huisarts0,4 km
Ziekenhuis4,0 km
Kinderdagverblijf0,6 km
BSO0,4 km
Alle voorzieningen in Zuidereng

Binnenkijken bij Van Driellaan 5 te Huizen

Meer meldingen in deze omgeving

Binnenkijken bij
Donderdag 12-2-2026
Groen van Prinstererlaan 6, 1272GC Huizen

Binnenkijken bij
Woensdag 11-2-2026
Van der Duyn van Maasdamlaan 28, 1272EM Huizen

Binnenkijken bij
Zondag 1-2-2026
Piersonlaan 8, 1272JR Huizen

Binnenkijken bij
Zondag 1-2-2026
Van Driellaan 7, 1272KE Huizen

Binnenkijken bij
Vrijdag 30-1-2026
Groen van Prinstererlaan 19, 1272GB Huizen

112 melding
Donderdag 29-1-2026 om 20:07
Thorbeckestraat, Huizen

Nieuw bedrijf
Januari 2026
Dr. de Visserlaan 8, 1272GX Huizen

Binnenkijken bij
Woensdag 21-1-2026
Frans Halslaan 9, 1272HN Huizen

Direct een e-mail ontvangen bij nieuwe meldingen in deze regio?

Meld je dan GRATIS aan voor de Oozo Alert service voor Zuidereng

Instellen

Meer nieuws in Zuidereng

Weten hoe eenvoudig het is om af te vallen? Zonder pillen en smeersels en zonder je in het zweet te werken!
Kijk op eenvoudig-afvallen.nl

© 2012 - 2026 OOZO.nl - info@oozo.nl - Gegevens verwijderen? | Disclaimer | Privacy statement