Woning Koedijk 3 Huizen

Koedijk 3, 1276 X Huizen

Ontvang updates voor Bovenweg

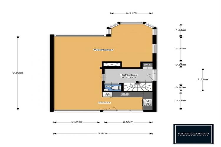
Het adres van deze woning uit 1972 is Koedijk 3 te Huizen. Het pand heeft een oppervlakte van 146m² en een perceeloppervlakte van 238m² en heeft 6 kamers kamers waarvan 4 slaapkamers. De geschatte waarde van deze woning is € 445.000.

Bekijk alle woningen in Bovenweg

Gegevens van Eengezinswoning, 2-onder-1-kapwoning

Bouwjaar
1972
Geschatte waarde
€ 445.000
Oppervlakte
146 m2
Inhoud
499 m3
Aantal kamers
6 kamers
Slaapkamers
4
Badkamers
1 badkamer en 1 apart toilet
Soort bouw
Bestaande bouw
Eigendomssituatie
Volle eigendom
Ligging
Aan rustige weg en in woonwijk
Tuin
Achtertuin, voortuin en zijtuin
Achtertuin
52 m² (8m diep en 6,5m breed)

Voorzieningen in de buurt

Boodschappen0,7 km
Grote supermarkt0,8 km
Cafetaria0,7 km
Restaurant0,7 km
Huisarts0,8 km
Ziekenhuis5,4 km
Kinderdagverblijf0,3 km
BSO0,9 km
Alle voorzieningen in Bovenweg

Binnenkijken bij Koedijk 3 te Huizen

Meer meldingen in deze omgeving

Nieuw bedrijf
Januari 2026
Graaf Floris 26, 1276XB Huizen

Nieuw bedrijf
December 2025
Koedijk 48, 1276XV Huizen

112 melding
Zaterdag 13-12-2025 om 21:54
Graaf Wichman, Huizen

112 melding
Zaterdag 13-12-2025 om 21:54
Graaf Wichman, Huizen

112 melding
Zaterdag 13-12-2025 om 15:47
Akkerweg, Huizen

Binnenkijken bij
Dinsdag 9-12-2025
Huizermaatweg 302K, 1276LJ Huizen

Binnenkijken bij
Dinsdag 9-12-2025
Huizermaatweg 302J, 1276LJ Huizen

112 melding
Zaterdag 6-12-2025 om 22:14
Graaf Wichman, Huizen

Direct een e-mail ontvangen bij nieuwe meldingen in deze regio?

Meld je dan GRATIS aan voor de Oozo Alert service voor Bovenweg

Instellen

Meer nieuws in Bovenweg

Weten hoe eenvoudig het is om af te vallen? Zonder pillen en smeersels en zonder je in het zweet te werken!
Kijk op eenvoudig-afvallen.nl

© 2012 - 2026 OOZO.nl - info@oozo.nl - Gegevens verwijderen? | Disclaimer | Privacy statement