Woning Balilaan 3 Huizen

Balilaan 3, 1276NK Huizen

Ontvang updates voor Zenderwijk

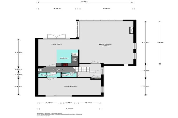
Het adres van deze woning uit 1999 is Balilaan 3 te Huizen. Het pand heeft een oppervlakte van 149m² en een perceeloppervlakte van 190m² en heeft 4 kamers kamers. De geschatte waarde van deze woning is € 469.000.

Bekijk alle woningen in Zenderwijk

Gegevens van Eengezinswoning, 2-onder-1-kapwoning

Bouwjaar
1999
Geschatte waarde
€ 469.000
Oppervlakte
149 m2
Inhoud
474 m3
Aantal kamers
4 kamers
Badkamers
2 badkamers en 1 apart toilet
Soort bouw
Bestaande bouw
Eigendomssituatie
Volle eigendom
Ligging
Aan rustige weg, beschutte ligging en in woonwijk
Tuin
Achtertuin, voortuin, zijtuin en zonneterras
Achtertuin
63 m² (7m diep en 9m breed)

Voorzieningen in de buurt

Boodschappen0,2 km
Grote supermarkt0,2 km
Cafetaria0,8 km
Restaurant0,8 km
Huisarts0,9 km
Ziekenhuis4,8 km
Kinderdagverblijf0,3 km
BSO0,8 km
Alle voorzieningen in Zenderwijk

Binnenkijken bij Balilaan 3 te Huizen

Meer meldingen in deze omgeving

Binnenkijken bij
Vrijdag 13-3-2026
Zenderlaan 15, 1276EL Huizen

Nieuw bedrijf
Maart 2026
Radiolaan 14, 1276EP Huizen

Binnenkijken bij
Zaterdag 28-2-2026
Gooilandweg 241, 1271KW Huizen

Binnenkijken bij
Vrijdag 27-2-2026
Phohistraat 44, 1276EJ Huizen

Binnenkijken bij
Woensdag 18-2-2026
Antennestraat 8, 1276ES Huizen

Binnenkijken bij
Woensdag 18-2-2026
Phohistraat 112, 1276EK Huizen

112 melding
Dinsdag 17-2-2026 om 04:07
Phohistraat, Huizen

Binnenkijken bij
Dinsdag 10-2-2026
Archipelplein 71, 1276NX Huizen

Direct een e-mail ontvangen bij nieuwe meldingen in deze regio?

Meld je dan GRATIS aan voor de Oozo Alert service voor Zenderwijk

Instellen

Meer nieuws in Zenderwijk

Weten hoe eenvoudig het is om af te vallen? Zonder pillen en smeersels en zonder je in het zweet te werken!
Kijk op eenvoudig-afvallen.nl

© 2012 - 2026 OOZO.nl - info@oozo.nl - Gegevens verwijderen? | Disclaimer | Privacy statement