Woning Phohistraat 70 Huizen

Phohistraat 70, 1276EK Huizen

Ontvang updates voor Zenderwijk

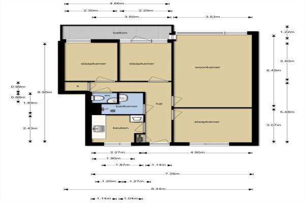
Het adres van deze woning uit 1963 is Phohistraat 70 te Huizen. Het pand heeft een oppervlakte van 73m² en heeft 4 kamers kamers waarvan 3 slaapkamers. De geschatte waarde van deze woning is € 163.500.

Bekijk alle woningen in Zenderwijk

Gegevens van Galerijflat (appartement)

Bouwjaar
1963
Geschatte waarde
€ 163.500
Oppervlakte
73 m2
Inhoud
234 m3
Aantal kamers
4 kamers
Slaapkamers
3
Soort bouw
Bestaande bouw
Eigendomssituatie
Volle eigendom
Ligging
Vrij uitzicht, in woonwijk en in bosrijke omgeving

Voorzieningen in de buurt

Boodschappen0,2 km
Grote supermarkt0,2 km
Cafetaria0,8 km
Restaurant0,8 km
Huisarts0,9 km
Ziekenhuis4,8 km
Kinderdagverblijf0,3 km
BSO0,8 km
Alle voorzieningen in Zenderwijk

Binnenkijken bij Phohistraat 70 te Huizen

Meer meldingen in deze omgeving

Binnenkijken bij
Donderdag 9-10-2025
Phohistraat 78, 1276EK Huizen

Binnenkijken bij
Donderdag 2-10-2025
Ambonlaan 52, 1276NJ Huizen

Binnenkijken bij
Dinsdag 23-9-2025
Zenderlaan 20, 1276EM Huizen

Binnenkijken bij
Vrijdag 19-9-2025
Marconistraat 12, 1276ET Huizen

Binnenkijken bij
Vrijdag 19-9-2025
Dr. Lelylaan 61, 1276GE Huizen

112 melding
Woensdag 3-9-2025 om 16:38
Ambonlaan, Huizen

112 melding
Woensdag 3-9-2025 om 16:36
Ambonlaan, Huizen

Binnenkijken bij
Vrijdag 25-7-2025
Ambonlaan 13, 1276NC Huizen

Direct een e-mail ontvangen bij nieuwe meldingen in deze regio?

Meld je dan GRATIS aan voor de Oozo Alert service voor Zenderwijk

Instellen

Meer nieuws in Zenderwijk

Weten hoe eenvoudig het is om af te vallen? Zonder pillen en smeersels en zonder je in het zweet te werken!
Kijk op eenvoudig-afvallen.nl

© 2012 - 2025 OOZO.nl - info@oozo.nl - Gegevens verwijderen? | Disclaimer | Privacy statement