Woning Vrouw Venneweg 30 Oud Ade

Vrouw Venneweg 30, 2374BE Oud Ade

Ontvang updates voor Oud Ade en Zevenhuizen

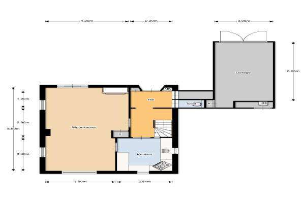
Het adres van deze woning uit 1962 is Vrouw Venneweg 30 te Oud Ade. Het pand heeft een oppervlakte van 116m² en een perceeloppervlakte van 453m² en heeft 5 kamers kamers waarvan 4 slaapkamers. De geschatte waarde van deze woning is € 425.000.

Bekijk alle woningen in Oud Ade en Zevenhuizen

Gegevens van Eengezinswoning, vrijstaande woning

Bouwjaar
1962
Geschatte waarde
€ 425.000
Oppervlakte
116 m2
Inhoud
454 m3
Aantal kamers
5 kamers
Slaapkamers
4
Badkamers
1 badkamer en 1 apart toilet
Soort bouw
Bestaande bouw
Eigendomssituatie
Volle eigendom
Ligging
Aan vaarwater en beschutte ligging
Tuin
Achtertuin, zijtuin en voortuin

Voorzieningen in de buurt

Boodschappen2,0 km
Grote supermarkt4,1 km
Cafetaria1,2 km
Restaurant1,2 km
Huisarts1,8 km
Ziekenhuis5,9 km
Kinderdagverblijf1,1 km
BSO1,1 km
Alle voorzieningen in Oud Ade en Zevenhuizen

Binnenkijken bij Vrouw Venneweg 30 te Oud Ade

Meer meldingen in deze omgeving

112 melding
Donderdag 20-11-2025 om 10:52
Abdij van Rijnsburglaan, 2374BH Oud Ade

112 melding
Maandag 17-11-2025 om 11:35
Pastoor Görtzstraat, 2374BG Oud Ade

112 melding
Vrijdag 14-11-2025 om 14:38
Pastoor Görtzstraat, 2374BG Oud Ade

112 melding
Vrijdag 14-11-2025 om 09:31
Leidseweg, 2374AR Oud Ade

112 melding
Woensdag 12-11-2025 om 11:39
Leidseweg, 2374AL Oud Ade

112 melding
Dinsdag 11-11-2025 om 18:07
Leidseweg, 2374AL Oud Ade

112 melding
Dinsdag 11-11-2025 om 18:07
Leidseweg, 2374AL Oud Ade

112 melding
Dinsdag 11-11-2025 om 09:25
Kolk, 2374AE Oud Ade

Direct een e-mail ontvangen bij nieuwe meldingen in deze regio?

Meld je dan GRATIS aan voor de Oozo Alert service voor Oud Ade en Zevenhuizen

Instellen

Meer nieuws in Oud Ade en Zevenhuizen

Weten hoe eenvoudig het is om af te vallen? Zonder pillen en smeersels en zonder je in het zweet te werken!
Kijk op eenvoudig-afvallen.nl

© 2012 - 2025 OOZO.nl - info@oozo.nl - Gegevens verwijderen? | Disclaimer | Privacy statement