Woning Looyerslaan 32 Katwijk

Looyerslaan 32, 2223TG Katwijk

Ontvang updates voor Dorp

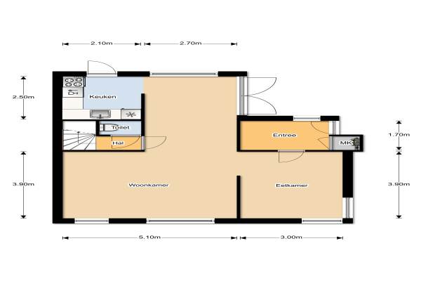
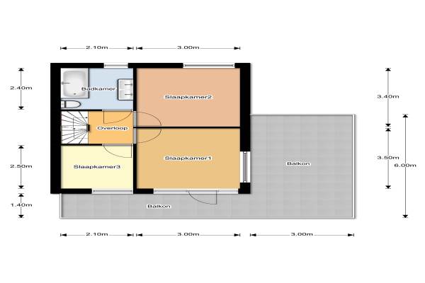
Het adres van deze woning uit 1981 is Looyerslaan 32 te Katwijk. Het pand heeft een oppervlakte van 117m² en een perceeloppervlakte van 166m² en heeft 6 kamers kamers waarvan 4 slaapkamers. De geschatte waarde van deze woning is € 359.000.

Bekijk alle woningen in Dorp

Gegevens van Eengezinswoning, hoekwoning

Bouwjaar
1981
Geschatte waarde
€ 359.000
Oppervlakte
117 m2
Inhoud
350 m3
Aantal kamers
6 kamers
Slaapkamers
4
Badkamers
1 badkamer en 1 apart toilet
Soort bouw
Bestaande bouw
Eigendomssituatie
Volle eigendom
Ligging
Aan rustige weg, in woonwijk en beschutte ligging
Tuin
Achtertuin en zonneterras
Achtertuin
60 m² (12m diep en 5m breed)

Voorzieningen in de buurt

Boodschappen0,3 km
Grote supermarkt0,4 km
Cafetaria0,3 km
Restaurant0,4 km
Huisarts0,5 km
Ziekenhuis1,8 km
Kinderdagverblijf0,4 km
BSO0,5 km
Alle voorzieningen in Dorp

Binnenkijken bij Looyerslaan 32 te Katwijk

Meer meldingen in deze omgeving

112 melding
Vrijdag 9-1-2026 om 15:37
Rijnstraat, Katwijk

112 melding
Donderdag 8-1-2026 om 21:18
Achterweg, 2223BE Katwijk

112 melding
Donderdag 8-1-2026 om 19:01
Achterweg, 2223BE Katwijk

112 melding
Woensdag 7-1-2026 om 15:25
Baron van Wassenaerlaan, Katwijk

112 melding
Woensdag 7-1-2026 om 11:27
J. van der Perkstraat, 2223BS Katwijk

112 melding
Dinsdag 6-1-2026 om 19:14
Schutterswei, Katwijk

112 melding
Dinsdag 6-1-2026 om 17:15
Schutterswei, Katwijk

112 melding
Maandag 5-1-2026 om 16:39
J. van der Perkstraat, 2223BT Katwijk

Direct een e-mail ontvangen bij nieuwe meldingen in deze regio?

Meld je dan GRATIS aan voor de Oozo Alert service voor Dorp

Instellen

Meer nieuws in Dorp

Weten hoe eenvoudig het is om af te vallen? Zonder pillen en smeersels en zonder je in het zweet te werken!
Kijk op eenvoudig-afvallen.nl

© 2012 - 2026 OOZO.nl - info@oozo.nl - Gegevens verwijderen? | Disclaimer | Privacy statement