Woning Sluisweg 6 Katwijk

Sluisweg 6, 2225XL Katwijk

Ontvang updates voor De Noord

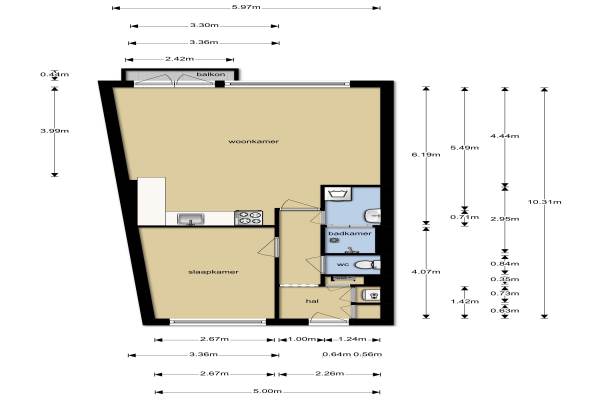
Het adres van deze woning uit 1976 is Sluisweg 6 te Katwijk. Het pand heeft een oppervlakte van 57m² en heeft 2 kamers kamers waarvan 1 slaapkamers. De geschatte waarde van deze woning is € 200.000.

Bekijk alle woningen in De Noord

Gegevens van Galerijflat (appartement)

Bouwjaar
1976
Geschatte waarde
€ 200.000
Oppervlakte
57 m2
Inhoud
181 m3
Aantal kamers
2 kamers
Slaapkamers
1
Badkamers
1 apart toilet
Soort bouw
Bestaande bouw
Eigendomssituatie
Volle eigendom
Ligging
In centrum

Voorzieningen in de buurt

Boodschappen0,2 km
Grote supermarkt0,6 km
Cafetaria0,3 km
Restaurant0,2 km
Huisarts1,1 km
Ziekenhuis1,3 km
Kinderdagverblijf0,2 km
BSO1,4 km
Alle voorzieningen in De Noord

Binnenkijken bij Sluisweg 6 te Katwijk

Meer meldingen in deze omgeving

112 melding
Dinsdag 20-1-2026 om 16:46
Batavenstraat, 2225ZC Katwijk

112 melding
Dinsdag 20-1-2026 om 16:44
te Brittenstraat, 2225ZT Katwijk

112 melding
Dinsdag 20-1-2026 om 16:42
Batavenstraat, Katwijk

112 melding
Dinsdag 20-1-2026 om 16:37
Keltenstraat, 2225XZ Katwijk aan Zee

112 melding
Dinsdag 20-1-2026 om 13:00
Batavenstraat, 2225ZD Katwijk

112 melding
Dinsdag 20-1-2026 om 11:30
E.A. Borgerstraat, 2225AS Katwijk

112 melding
Dinsdag 20-1-2026 om 09:11
Hessenstraat, 2225XE Katwijk

112 melding
Maandag 19-1-2026 om 16:32
te Brittenstraat, 2225ZX Katwijk

Direct een e-mail ontvangen bij nieuwe meldingen in deze regio?

Meld je dan GRATIS aan voor de Oozo Alert service voor De Noord

Instellen

Meer nieuws in De Noord

Weten hoe eenvoudig het is om af te vallen? Zonder pillen en smeersels en zonder je in het zweet te werken!
Kijk op eenvoudig-afvallen.nl

© 2012 - 2026 OOZO.nl - info@oozo.nl - Gegevens verwijderen? | Disclaimer | Privacy statement