Woning Piet Heinlaan 74 Katwijk

Piet Heinlaan 74, 2224TD Katwijk

Ontvang updates voor Witte Hek

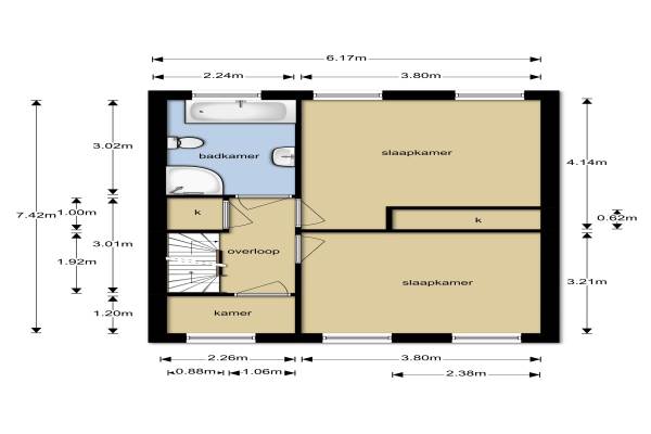
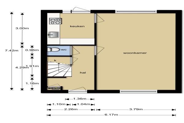
Het adres van deze woning uit 1948 is Piet Heinlaan 74 te Katwijk. Het pand heeft een oppervlakte van 123m² en een perceeloppervlakte van 162m² en heeft 6 kamers kamers waarvan 4 slaapkamers. De geschatte waarde van deze woning is € 295.000.

Bekijk alle woningen in Witte Hek

Gegevens van Eengezinswoning, tussenwoning

Bouwjaar
1948
Geschatte waarde
€ 295.000
Oppervlakte
123 m2
Inhoud
394 m3
Aantal kamers
6 kamers
Slaapkamers
4
Badkamers
1 apart toilet
Soort bouw
Bestaande bouw
Eigendomssituatie
Volle eigendom
Ligging
Aan rustige weg en in woonwijk
Tuin
Achtertuin en voortuin

Voorzieningen in de buurt

Binnenkijken bij Piet Heinlaan 74 te Katwijk

Meer meldingen in deze omgeving

112 melding
Maandag 19-1-2026 om 11:41
Kortenaerstraat, 2224RH Katwijk

112 melding
Maandag 19-1-2026 om 11:41
Kortenaerstraat, 2224RH Katwijk

112 melding
Maandag 19-1-2026 om 07:59
Jacob van Heemskerklaan, Katwijk

112 melding
Zondag 18-1-2026 om 12:14
Piet Heinlaan, Katwijk

112 melding
Zaterdag 17-1-2026 om 19:42
Admiraal de Ruijterlaan, Katwijk

112 melding
Zaterdag 17-1-2026 om 19:20
Admiraal de Ruijterlaan, Katwijk

112 melding
Zaterdag 17-1-2026 om 13:30
Jacob van Heemskerklaan, Katwijk

112 melding
Vrijdag 16-1-2026 om 12:33
Bomschuitstraat, Katwijk

Direct een e-mail ontvangen bij nieuwe meldingen in deze regio?

Meld je dan GRATIS aan voor de Oozo Alert service voor Witte Hek

Instellen

Meer nieuws in Witte Hek

Weten hoe eenvoudig het is om af te vallen? Zonder pillen en smeersels en zonder je in het zweet te werken!
Kijk op eenvoudig-afvallen.nl

© 2012 - 2026 OOZO.nl - info@oozo.nl - Gegevens verwijderen? | Disclaimer | Privacy statement