Woning Leeuwerikstraat 19 Kerkrade

Leeuwerikstraat 19, 6469XL Kerkrade

Ontvang updates voor Hopel

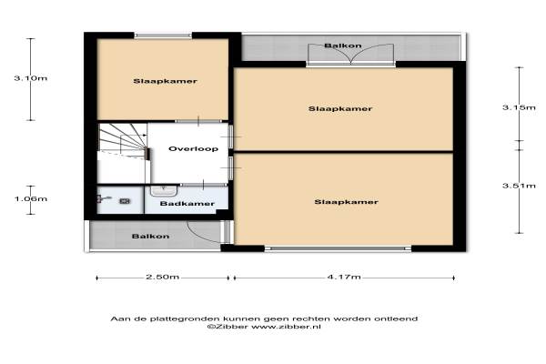
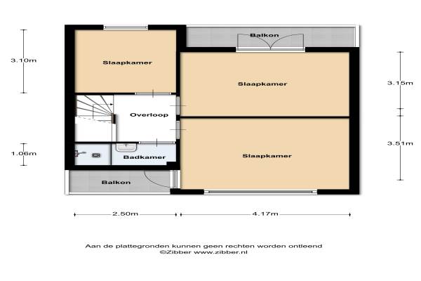
Het adres van deze woning uit 1960 is Leeuwerikstraat 19 te Kerkrade. Het pand heeft een oppervlakte van 92m² en een perceeloppervlakte van 229m² en heeft 6 kamers kamers waarvan 3 slaapkamers. De geschatte waarde van deze woning is € 125.000.

Bekijk alle woningen in Hopel

Gegevens van Eengezinswoning, tussenwoning

Bouwjaar
1960
Geschatte waarde
€ 125.000
Oppervlakte
92 m2
Inhoud
402 m3
Aantal kamers
6 kamers
Slaapkamers
3
Badkamers
1 badkamer en 1 apart toilet
Soort bouw
Bestaande bouw
Eigendomssituatie
Volle eigendom
Tuin
Achtertuin en voortuin
Achtertuin
120 m² (16m diep en 7,5m breed)

Voorzieningen in de buurt

Boodschappen0,7 km
Grote supermarkt0,9 km
Cafetaria0,5 km
Restaurant0,4 km
Huisarts0,7 km
Ziekenhuis4,0 km
Kinderdagverblijf1,0 km
BSO1,0 km
Alle voorzieningen in Hopel

Binnenkijken bij Leeuwerikstraat 19 te Kerkrade

Meer meldingen in deze omgeving

Nieuw bedrijf
December 2025
Laurastraat 181, 6471JK Eygelshoven

Nieuw bedrijf
December 2025
Schweitzerstraat 7, 6471KL Eygelshoven

Binnenkijken bij
Zaterdag 6-12-2025
Anselderlaan 54, 6471GM Eygelshoven

Nieuw bedrijf
December 2025
Dentgenbachweg 11, 6469XV Kerkrade

Nieuw bedrijf
December 2025
Laurastraat 115A, 6471JJ EYGELSHOVEN

112 melding
Maandag 1-12-2025 om 07:32
Leeuwerikstraat, Kerkrade

112 melding
Donderdag 27-11-2025 om 07:38
Kanariestraat, 6469XN Kerkrade

112 melding
Donderdag 27-11-2025 om 07:35
Kanariestraat, 6469XN Kerkrade

Direct een e-mail ontvangen bij nieuwe meldingen in deze regio?

Meld je dan GRATIS aan voor de Oozo Alert service voor Hopel

Instellen

Meer nieuws in Hopel

Weten hoe eenvoudig het is om af te vallen? Zonder pillen en smeersels en zonder je in het zweet te werken!
Kijk op eenvoudig-afvallen.nl

© 2012 - 2025 OOZO.nl - info@oozo.nl - Gegevens verwijderen? | Disclaimer | Privacy statement