Woning Peschbeemdenstraat 12 Kerkrade

Peschbeemdenstraat 12, 6462RZ Kerkrade

Ontvang updates voor Bleijerheide

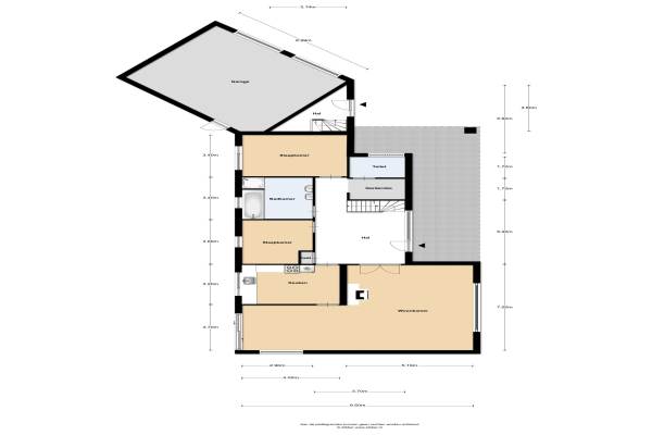
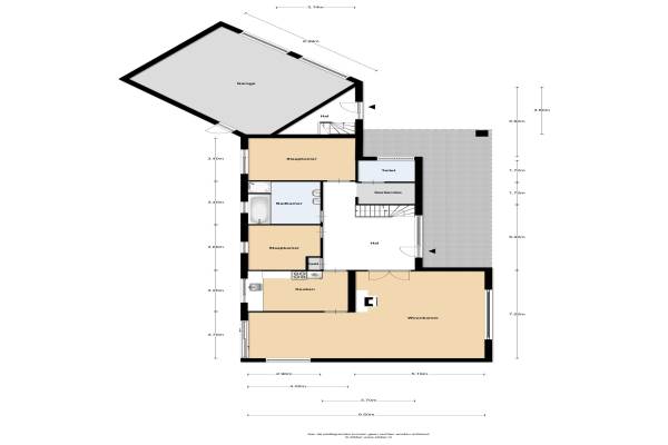
Het adres van deze woning uit 1974 is Peschbeemdenstraat 12 te Kerkrade. Het pand heeft een oppervlakte van 390m² en een perceeloppervlakte van 1295m² en heeft 15 kamers kamers waarvan 5 slaapkamers. De geschatte waarde van deze woning is € 475.000.

Bekijk alle woningen in Bleijerheide

Gegevens van Eengezinswoning, vrijstaande woning

Bouwjaar
1974
Geschatte waarde
€ 475.000
Oppervlakte
390 m2
Inhoud
1295 m3
Aantal kamers
15 kamers
Slaapkamers
5
Badkamers
2 badkamers en 1 apart toilet
Soort bouw
Bestaande bouw
Eigendomssituatie
Volle eigendom
Tuin
Tuin rondom

Voorzieningen in de buurt

Boodschappen0,3 km
Grote supermarkt1,0 km
Cafetaria0,2 km
Restaurant1,4 km
Huisarts1,0 km
Ziekenhuis2,2 km
Kinderdagverblijf0,5 km
BSO0,5 km
Alle voorzieningen in Bleijerheide

Binnenkijken bij Peschbeemdenstraat 12 te Kerkrade

Meer meldingen in deze omgeving

112 melding
Zaterdag 20-12-2025 om 02:45
Henri Jonasplein, 6462CR Kerkrade

Binnenkijken bij
Zaterdag 20-12-2025
Ursulastraat 61, 6462TS Kerkrade

Binnenkijken bij
Zaterdag 20-12-2025
Franciscanerstraat 27, 6462CL Kerkrade

Binnenkijken bij
Dinsdag 16-12-2025
Bleijerheiderstraat 121, 6462AH Kerkrade

112 melding
Zondag 14-12-2025 om 16:57
Josephinastraat, 6462EL Kerkrade

112 melding
Zondag 14-12-2025 om 16:56
Josephinastraat, 6462EL Kerkrade

112 melding
Zondag 14-12-2025 om 16:55
Josephinastraat, 6462EL Kerkrade

Binnenkijken bij
Zaterdag 13-12-2025
Bleijerheiderstraat 123B, 6462AH Kerkrade

Direct een e-mail ontvangen bij nieuwe meldingen in deze regio?

Meld je dan GRATIS aan voor de Oozo Alert service voor Bleijerheide

Instellen

Meer nieuws in Bleijerheide

Weten hoe eenvoudig het is om af te vallen? Zonder pillen en smeersels en zonder je in het zweet te werken!
Kijk op eenvoudig-afvallen.nl

© 2012 - 2025 OOZO.nl - info@oozo.nl - Gegevens verwijderen? | Disclaimer | Privacy statement