Woning Voccartstraat 23 Kerkrade

Voccartstraat 23, 6462GA Kerkrade

Ontvang updates voor Bleijerheide

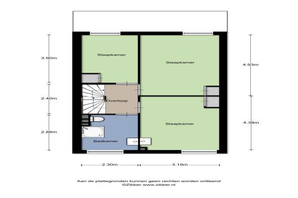
Het adres van deze woning uit 1980 is Voccartstraat 23 te Kerkrade. Het pand heeft een oppervlakte van 134m² en een perceeloppervlakte van 182m² en heeft 6 kamers kamers waarvan 4 slaapkamers. De geschatte waarde van deze woning is € 165.000.

Bekijk alle woningen in Bleijerheide

Gegevens van Eengezinswoning, tussenwoning

Bouwjaar
1980
Geschatte waarde
€ 165.000
Oppervlakte
134 m2
Inhoud
513 m3
Aantal kamers
6 kamers
Slaapkamers
4
Badkamers
1 apart toilet
Soort bouw
Bestaande bouw
Eigendomssituatie
Volle eigendom
Ligging
In woonwijk
Tuin
Achtertuin en voortuin
Achtertuin
72 m² (12m diep en 6m breed)

Voorzieningen in de buurt

Boodschappen0,3 km
Grote supermarkt1,0 km
Cafetaria0,2 km
Restaurant1,4 km
Huisarts1,0 km
Ziekenhuis2,2 km
Kinderdagverblijf0,5 km
BSO0,5 km
Alle voorzieningen in Bleijerheide

Binnenkijken bij Voccartstraat 23 te Kerkrade

Meer meldingen in deze omgeving

112 melding
Zaterdag 20-12-2025 om 02:45
Henri Jonasplein, 6462CR Kerkrade

Binnenkijken bij
Zaterdag 20-12-2025
Ursulastraat 61, 6462TS Kerkrade

Binnenkijken bij
Zaterdag 20-12-2025
Franciscanerstraat 27, 6462CL Kerkrade

Binnenkijken bij
Dinsdag 16-12-2025
Bleijerheiderstraat 121, 6462AH Kerkrade

112 melding
Zondag 14-12-2025 om 16:57
Josephinastraat, 6462EL Kerkrade

112 melding
Zondag 14-12-2025 om 16:56
Josephinastraat, 6462EL Kerkrade

112 melding
Zondag 14-12-2025 om 16:55
Josephinastraat, 6462EL Kerkrade

Binnenkijken bij
Zaterdag 13-12-2025
Bleijerheiderstraat 123B, 6462AH Kerkrade

Direct een e-mail ontvangen bij nieuwe meldingen in deze regio?

Meld je dan GRATIS aan voor de Oozo Alert service voor Bleijerheide

Instellen

Meer nieuws in Bleijerheide

Weten hoe eenvoudig het is om af te vallen? Zonder pillen en smeersels en zonder je in het zweet te werken!
Kijk op eenvoudig-afvallen.nl

© 2012 - 2025 OOZO.nl - info@oozo.nl - Gegevens verwijderen? | Disclaimer | Privacy statement