Woning Bleijerheiderstraat 68 Kerkrade

Bleijerheiderstraat 68, 6462 A Kerkrade

Ontvang updates voor Nulland

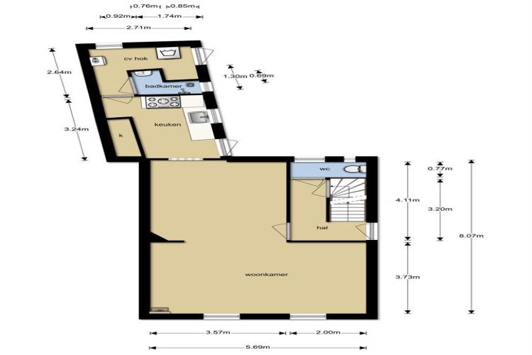
Het adres van deze woning uit 1934 is Bleijerheiderstraat 68 te Kerkrade. Het pand heeft een oppervlakte van 142m² en een perceeloppervlakte van 835m² en heeft 8 kamers kamers waarvan 4 slaapkamers. De geschatte waarde van deze woning is € 150.000.

Bekijk alle woningen in Nulland

Gegevens van Eengezinswoning, vrijstaande woning

Bouwjaar
1934
Geschatte waarde
€ 150.000
Oppervlakte
142 m2
Inhoud
595 m3
Aantal kamers
8 kamers
Slaapkamers
4
Badkamers
1 badkamer en 1 apart toilet
Soort bouw
Bestaande bouw
Eigendomssituatie
Volle eigendom
Ligging
In woonwijk
Tuin
Tuin rondom

Voorzieningen in de buurt

Boodschappen0,5 km
Grote supermarkt0,5 km
Cafetaria0,4 km
Restaurant0,8 km
Huisarts0,5 km
Ziekenhuis1,7 km
Kinderdagverblijf0,5 km
BSO0,7 km
Alle voorzieningen in Nulland

Binnenkijken bij Bleijerheiderstraat 68 te Kerkrade

Meer meldingen in deze omgeving

112 melding
Zaterdag 20-12-2025 om 03:56
Maria Gorettistraat, Kerkrade

112 melding
Zaterdag 20-12-2025 om 03:46
Maria Gorettistraat, Kerkrade

112 melding
Zaterdag 20-12-2025 om 03:27
Maria Gorettistraat, Kerkrade

112 melding
Zaterdag 20-12-2025 om 03:27
Maria Gorettistraat, Kerkrade

112 melding
Zaterdag 20-12-2025 om 03:16
Maria Gorettistraat, Kerkrade

Binnenkijken bij
Zaterdag 20-12-2025
Bosstraat 14, 6462AT Kerkrade

Nieuw bedrijf
December 2025
Bosveldstraat 26, 6462AX Kerkrade

Binnenkijken bij
Zaterdag 6-12-2025
Veldkuilstraat 61, 6462BC Kerkrade

Direct een e-mail ontvangen bij nieuwe meldingen in deze regio?

Meld je dan GRATIS aan voor de Oozo Alert service voor Nulland

Instellen

Meer nieuws in Nulland

Weten hoe eenvoudig het is om af te vallen? Zonder pillen en smeersels en zonder je in het zweet te werken!
Kijk op eenvoudig-afvallen.nl

© 2012 - 2025 OOZO.nl - info@oozo.nl - Gegevens verwijderen? | Disclaimer | Privacy statement