Woning Graverstraat 17 Kerkrade

Graverstraat 17, 6466KT Kerkrade

Ontvang updates voor Spekholzerheide

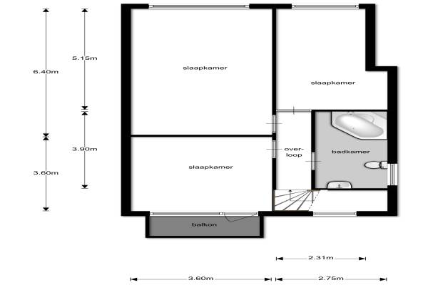
Het adres van deze woning uit 1967 is Graverstraat 17 te Kerkrade. Het pand heeft een oppervlakte van 115m² en een perceeloppervlakte van 278m² en heeft 4 kamers kamers waarvan 3 slaapkamers. De geschatte waarde van deze woning is € 150.000.

Bekijk alle woningen in Spekholzerheide

Gegevens van Eengezinswoning, halfvrijstaande woning

Bouwjaar
1967
Geschatte waarde
€ 150.000
Oppervlakte
115 m2
Inhoud
410 m3
Aantal kamers
4 kamers
Slaapkamers
3
Badkamers
1 badkamer en 1 apart toilet
Soort bouw
Bestaande bouw
Eigendomssituatie
Volle eigendom
Ligging
Aan rustige weg, in woonwijk en beschutte ligging
Tuin
Achtertuin, voortuin en zijtuin
Achtertuin
120 m² (14,6m diep en 8,2m breed)

Voorzieningen in de buurt

Boodschappen0,3 km
Grote supermarkt0,5 km
Cafetaria0,3 km
Restaurant0,4 km
Huisarts1,0 km
Ziekenhuis3,3 km
Kinderdagverblijf0,5 km
BSO0,6 km
Alle voorzieningen in Spekholzerheide

Binnenkijken bij Graverstraat 17 te Kerkrade

Meer meldingen in deze omgeving

112 melding
Dinsdag 30-9-2025 om 11:04
Wenckebachstraat, 6466NC Kerkrade (Van Swietenstraat)

112 melding
Woensdag 24-9-2025 om 00:05
Roda J.C. Ring, 6466NH Kerkrade

112 melding
Dinsdag 23-9-2025 om 09:19
Wiebachstraat, 6466NG Kerkrade

112 melding
Dinsdag 23-9-2025 om 08:38
Industriestraat, Kerkrade

Binnenkijken bij
Dinsdag 23-9-2025
Pleinstraat 25, 6466LP Kerkrade

Binnenkijken bij
Maandag 22-9-2025
Graverstraat 24, 6466KW Kerkrade

Binnenkijken bij
Maandag 22-9-2025
Kleingraverstraat 167, 6466EC Kerkrade

Onroerend goed
Vrijdag 19-9-2025
Carboonplein 17, 6466CX Kerkrade

Direct een e-mail ontvangen bij nieuwe meldingen in deze regio?

Meld je dan GRATIS aan voor de Oozo Alert service voor Spekholzerheide

Instellen

Meer nieuws in Spekholzerheide

Weten hoe eenvoudig het is om af te vallen? Zonder pillen en smeersels en zonder je in het zweet te werken!
Kijk op eenvoudig-afvallen.nl

© 2012 - 2025 OOZO.nl - info@oozo.nl - Gegevens verwijderen? | Disclaimer | Privacy statement