Woning Tulpstraat 3 Ursem

Tulpstraat 3, 1645SN Ursem

Ontvang updates voor Ursem-Centrum

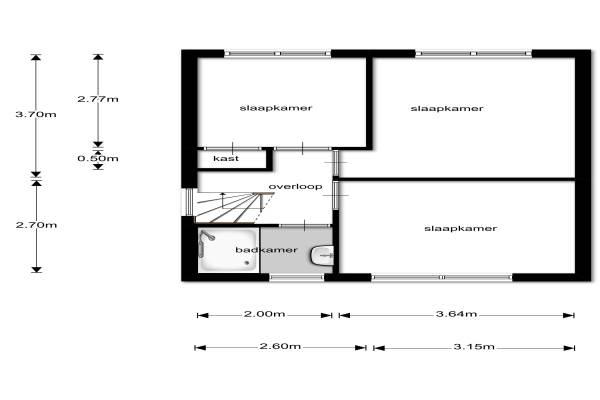
Het adres van deze woning uit 1968 is Tulpstraat 3 te Ursem. Het pand heeft een oppervlakte van 94m² en een perceeloppervlakte van 144m² en heeft 5 kamers kamers waarvan 4 slaapkamers. De geschatte waarde van deze woning is € 175.000.

Bekijk alle woningen in Ursem-Centrum

Gegevens van Eengezinswoning, tussenwoning

Bouwjaar
1968
Geschatte waarde
€ 175.000
Oppervlakte
94 m2
Inhoud
300 m3
Aantal kamers
5 kamers
Slaapkamers
4
Badkamers
1 badkamer en 1 apart toilet
Soort bouw
Bestaande bouw
Eigendomssituatie
Volle eigendom
Ligging
Aan rustige weg, in centrum en vrij uitzicht
Tuin
Achtertuin en voortuin
Achtertuin
40 m² (11,73m diep en 3,45m breed)

Voorzieningen in de buurt

Binnenkijken bij Tulpstraat 3 te Ursem

Meer meldingen in deze omgeving

112 melding
Maandag 24-11-2025 om 18:20
Drechterlandsedijk, 1645RH Ursem

Binnenkijken bij
Vrijdag 21-11-2025
Kosterijstraat 15, 1645SW Ursem (Gem. Koggenland)

112 melding
Donderdag 20-11-2025 om 11:59
Koperwiek, Ursem

112 melding
Donderdag 20-11-2025 om 02:28
Zuidgouw, Ursem

Nieuw bedrijf
November 2025
Zuidgouw 80, 1645PD Ursem

112 melding
Vrijdag 14-11-2025 om 00:27
Gabriëlstraat, 1645SR Ursem

112 melding
Dinsdag 11-11-2025 om 21:57
Kosterijstraat, Ursem

Binnenkijken bij
Dinsdag 11-11-2025
Noorddijkerweg 14D, 1645VE Ursem (Gem. Koggenland)

Direct een e-mail ontvangen bij nieuwe meldingen in deze regio?

Meld je dan GRATIS aan voor de Oozo Alert service voor Ursem-Centrum

Instellen

Meer nieuws in Ursem-Centrum

Weten hoe eenvoudig het is om af te vallen? Zonder pillen en smeersels en zonder je in het zweet te werken!
Kijk op eenvoudig-afvallen.nl

© 2012 - 2025 OOZO.nl - info@oozo.nl - Gegevens verwijderen? | Disclaimer | Privacy statement