Woning Poolzee 28 Krimpen aan de Lek

Poolzee 28, 2931RK Krimpen aan de Lek

Ontvang updates voor Tiendweg Noord

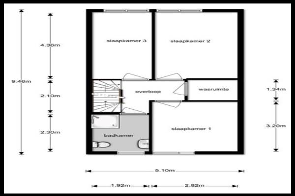
Het adres van deze woning uit 1985 is Poolzee 28 te Krimpen aan de Lek. Het pand heeft een oppervlakte van 110m² en een perceeloppervlakte van 150m² en heeft 4 kamers kamers waarvan 3 slaapkamers. De geschatte waarde van deze woning is € 259.500.

Bekijk alle woningen in Tiendweg Noord

Gegevens van Eengezinswoning, hoekwoning

Bouwjaar
1985
Geschatte waarde
€ 259.500
Oppervlakte
110 m2
Inhoud
340 m3
Aantal kamers
4 kamers
Slaapkamers
3
Badkamers
1 badkamer en 1 apart toilet
Soort bouw
Bestaande bouw
Eigendomssituatie
Volle eigendom
Ligging
Aan rustige weg en in woonwijk
Tuin
Achtertuin en voortuin
Achtertuin
72 m² (12m diep en 6m breed)

Voorzieningen in de buurt

Boodschappen0,9 km
Grote supermarkt1,0 km
Cafetaria1,0 km
Restaurant1,4 km
Huisarts1,1 km
Ziekenhuis5,0 km
Kinderdagverblijf0,7 km
BSO0,4 km
Alle voorzieningen in Tiendweg Noord

Binnenkijken bij Poolzee 28 te Krimpen aan de Lek

Meer meldingen in deze omgeving

112 melding
Zondag 12-10-2025 om 18:33
Spitsbergen, 2931RL Krimpen aan de Lek

112 melding
Vrijdag 3-10-2025 om 04:31
Pieter Groenpad, 2931PB Krimpen aan de Lek

112 melding
Woensdag 1-10-2025 om 10:30
Behouden Huis, 2931RG Krimpen aan de Lek

112 melding
Zaterdag 20-9-2025 om 11:43
Smerenburg, 2931RB Krimpen aan de Lek

112 melding
Woensdag 17-9-2025 om 05:25
Poolcirkel, 2931PK Krimpen aan de Lek

112 melding
Dinsdag 16-9-2025 om 09:34
Groenland, 2931RA Krimpen aan de Lek

112 melding
Dinsdag 26-8-2025 om 19:47
Hogerzeil, 2931RH Krimpen aan de Lek

112 melding
Vrijdag 15-8-2025 om 21:48
Straat Davis, 2931RM Krimpen aan de Lek

Direct een e-mail ontvangen bij nieuwe meldingen in deze regio?

Meld je dan GRATIS aan voor de Oozo Alert service voor Tiendweg Noord

Instellen

Meer nieuws in Tiendweg Noord

Weten hoe eenvoudig het is om af te vallen? Zonder pillen en smeersels en zonder je in het zweet te werken!
Kijk op eenvoudig-afvallen.nl

© 2012 - 2025 OOZO.nl - info@oozo.nl - Gegevens verwijderen? | Disclaimer | Privacy statement