Woning Scholeksterstraat 20 Lekkerkerk

Scholeksterstraat 20, 2941PB Lekkerkerk

Ontvang updates voor Tiendhoek

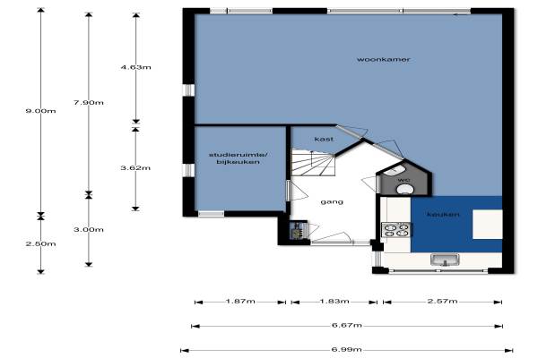
Het adres van deze woning uit 1994 is Scholeksterstraat 20 te Lekkerkerk. Het pand heeft een oppervlakte van 140m² en een perceeloppervlakte van 199m² en heeft 6 kamers kamers waarvan 3 slaapkamers. De geschatte waarde van deze woning is € 359.000.

Bekijk alle woningen in Tiendhoek

Gegevens van Eengezinswoning, eindwoning

Bouwjaar
1994
Geschatte waarde
€ 359.000
Oppervlakte
140 m2
Inhoud
450 m3
Aantal kamers
6 kamers
Slaapkamers
3
Badkamers
1 badkamer en 1 apart toilet
Soort bouw
Bestaande bouw
Eigendomssituatie
Volle eigendom
Ligging
In woonwijk en vrij uitzicht
Tuin
Achtertuin en voortuin
Achtertuin
M² (11m diep en 7m breed)

Voorzieningen in de buurt

Boodschappen1,2 km
Grote supermarkt0,9 km
Cafetaria1,4 km
Restaurant1,3 km
Huisarts1,3 km
Ziekenhuis9,2 km
Kinderdagverblijf0,9 km
BSO0,9 km
Alle voorzieningen in Tiendhoek

Binnenkijken bij Scholeksterstraat 20 te Lekkerkerk

Meer meldingen in deze omgeving

112 melding
Vrijdag 23-1-2026 om 10:56
Watersniplaan, 2941PD Lekkerkerk

112 melding
Vrijdag 23-1-2026 om 07:36
Leeuwerikhof, 2941RE Lekkerkerk

112 melding
Woensdag 7-1-2026 om 22:53
Leeuwerikhof, 2941RE Lekkerkerk

112 melding
Woensdag 7-1-2026 om 22:52
Leeuwerikhof, 2941RE Lekkerkerk

112 melding
Maandag 5-1-2026 om 19:08
Weidelaan, 2941RJ Lekkerkerk

112 melding
Donderdag 1-1-2026 om 15:23
Korentiende, 2941RP Lekkerkerk

Nieuw bedrijf
Januari 2026
Kerkweg 255, 2941BL Lekkerkerk

Nieuw bedrijf
Januari 2026
Fazantstraat 15, 2941RA Lekkerkerk

Direct een e-mail ontvangen bij nieuwe meldingen in deze regio?

Meld je dan GRATIS aan voor de Oozo Alert service voor Tiendhoek

Instellen

Meer nieuws in Tiendhoek

Weten hoe eenvoudig het is om af te vallen? Zonder pillen en smeersels en zonder je in het zweet te werken!
Kijk op eenvoudig-afvallen.nl

© 2012 - 2026 OOZO.nl - info@oozo.nl - Gegevens verwijderen? | Disclaimer | Privacy statement