Woning Emmastraat 28 Landgraaf

Emmastraat 28, 6373HM Landgraaf

Ontvang updates voor Oud Nieuwenhagen

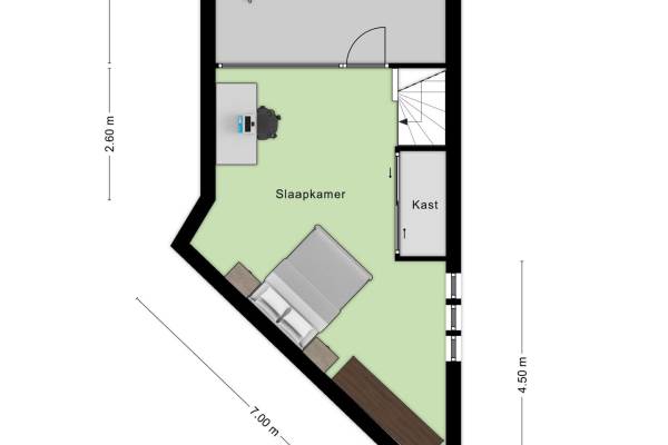
Het adres van deze woning uit 2001 is Emmastraat 28 te Landgraaf. Het pand heeft een oppervlakte van 119m² en een perceeloppervlakte van 104m² en heeft 6 kamers kamers waarvan 4 slaapkamers. De geschatte waarde van deze woning is € 220.000.

Bekijk alle woningen in Oud Nieuwenhagen

Gegevens van Eengezinswoning, tussenwoning

Bouwjaar
2001
Geschatte waarde
€ 220.000
Oppervlakte
119 m2
Inhoud
385 m3
Aantal kamers
6 kamers
Slaapkamers
4
Badkamers
1 badkamer en 2 aparte toiletten
Soort bouw
Bestaande bouw
Eigendomssituatie
Volle eigendom
Ligging
Aan rustige weg en in woonwijk
Tuin
Achtertuin
Achtertuin
29 m² (6,63 meter diep en 4,3 meter breed)

Voorzieningen in de buurt

Boodschappen0,4 km
Grote supermarkt0,9 km
Cafetaria0,2 km
Restaurant0,4 km
Huisarts0,5 km
Ziekenhuis6,2 km
Kinderdagverblijf0,5 km
BSO1,1 km
Alle voorzieningen in Oud Nieuwenhagen

Binnenkijken bij Emmastraat 28 te Landgraaf

Meer meldingen in deze omgeving

Nieuw bedrijf
November 2025
Hereweg 112, 6373VL Landgraaf

Binnenkijken bij
Zondag 16-11-2025
Zuster Theodolindestraat 4, 6373KZ Landgraaf

Binnenkijken bij
Dinsdag 11-11-2025
Hoogstraat 100, 6373HX Landgraaf

Binnenkijken bij
Dinsdag 11-11-2025
Heigank 58, 6373KS Landgraaf

Binnenkijken bij
Dinsdag 11-11-2025
Rötscherweg 27, 6373XP Landgraaf

Nieuw bedrijf
November 2025
Prins Bernhardstraat 16, 6373KK Landgraaf

Nieuw bedrijf
November 2025
Dorpstraat 58, 6373JE Landgraaf

Binnenkijken bij
Donderdag 30-10-2025
Heigank 21B, 6373KM Landgraaf

Direct een e-mail ontvangen bij nieuwe meldingen in deze regio?

Meld je dan GRATIS aan voor de Oozo Alert service voor Oud Nieuwenhagen

Instellen

Meer nieuws in Oud Nieuwenhagen

Weten hoe eenvoudig het is om af te vallen? Zonder pillen en smeersels en zonder je in het zweet te werken!
Kijk op eenvoudig-afvallen.nl

© 2012 - 2025 OOZO.nl - info@oozo.nl - Gegevens verwijderen? | Disclaimer | Privacy statement