Woning Kanaaldijk 57 Koedijk

Kanaaldijk 57, 1832AC Koedijk

Ontvang updates voor Koedijk

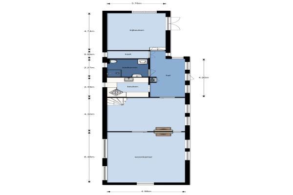
Het adres van deze woning uit 1832 is Kanaaldijk 57 te Koedijk. Het pand heeft een oppervlakte van 127m² en een perceeloppervlakte van 450m² en heeft 5 kamers kamers waarvan 2 slaapkamers. De geschatte waarde van deze woning is € 419.000.

Bekijk alle woningen in Koedijk

Gegevens van Eengezinswoning, vrijstaande woning (dijkwoning)

Bouwjaar
1832
Geschatte waarde
€ 419.000
Oppervlakte
127 m2
Inhoud
526 m3
Aantal kamers
5 kamers
Slaapkamers
2
Badkamers
1 badkamer
Soort bouw
Bestaande bouw
Eigendomssituatie
Volle eigendom
Ligging
Aan water, aan rustige weg en vrij uitzicht
Tuin
Achtertuin en zijtuin
Achtertuin
240 m² (20m diep en 12m breed)

Voorzieningen in de buurt

Boodschappen3,2 km
Grote supermarkt2,1 km
Cafetaria2,4 km
Restaurant1,4 km
Huisarts1,7 km
Ziekenhuis6,8 km
Kinderdagverblijf1,6 km
BSO1,6 km
Alle voorzieningen in Koedijk

Binnenkijken bij Kanaaldijk 57 te Koedijk

Meer meldingen in deze omgeving

112 melding
Maandag 24-11-2025 om 10:25
Wagenweg, 1724PT Oudkarspel

112 melding
Woensdag 12-11-2025 om 11:58
Kleimeer, 1832AH Koedijk

Onroerend goed
Dinsdag 11-11-2025
Wagenweg 2-A, 1724PT Oudkarspel (Gem. Dijk en Waard)

Onroerend goed
Dinsdag 11-11-2025
Kanaaldijk 66, 1832AD Koedijk (Gem. Dijk en Waard)

Binnenkijken bij
Dinsdag 11-11-2025
Wagenweg 2, 1724PT Oudkarspel (Gem. Dijk en Waard)

112 melding
Zondag 9-11-2025 om 11:50
Kleimeer, 1832AH Koedijk

112 melding
Zaterdag 8-11-2025 om 09:21
Kanaaldijk, Koedijk

112 melding
Zaterdag 8-11-2025 om 00:20
Kanaaldijk, Koedijk

Direct een e-mail ontvangen bij nieuwe meldingen in deze regio?

Meld je dan GRATIS aan voor de Oozo Alert service voor Koedijk

Instellen

Meer nieuws in Koedijk

Weten hoe eenvoudig het is om af te vallen? Zonder pillen en smeersels en zonder je in het zweet te werken!
Kijk op eenvoudig-afvallen.nl

© 2012 - 2025 OOZO.nl - info@oozo.nl - Gegevens verwijderen? | Disclaimer | Privacy statement