Woning Dorpsstraat 773 Oudkarspel

Dorpsstraat 773, 1724NM Oudkarspel

Ontvang updates voor Oudkarspel

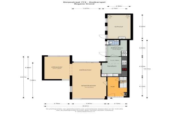
Het adres van deze woning uit 1962 is Dorpsstraat 773 te Oudkarspel. Het pand heeft een oppervlakte van 139m² en een perceeloppervlakte van 525m² en heeft 5 kamers kamers waarvan 4 slaapkamers. De geschatte waarde van deze woning is € 375.000.

Bekijk alle woningen in Oudkarspel

Gegevens van Eengezinswoning, 2-onder-1-kapwoning

Bouwjaar
1962
Geschatte waarde
€ 375.000
Oppervlakte
139 m2
Inhoud
517 m3
Aantal kamers
5 kamers
Slaapkamers
4
Badkamers
2 aparte toiletten
Soort bouw
Bestaande bouw
Eigendomssituatie
Volle eigendom
Ligging
Aan drukke weg en aan rustige weg
Tuin
Achtertuin en voortuin
Achtertuin
23 m² (23m diep en 1m breed)

Voorzieningen in de buurt

Boodschappen0,6 km
Grote supermarkt0,6 km
Cafetaria1,7 km
Restaurant0,7 km
Huisarts1,5 km
Ziekenhuis6,2 km
Kinderdagverblijf0,7 km
BSO0,7 km
Alle voorzieningen in Oudkarspel

Binnenkijken bij Dorpsstraat 773 te Oudkarspel

Meer meldingen in deze omgeving

112 melding
Woensdag 24-12-2025 om 21:27
Zaagmolenweg, Oudkarspel

112 melding
Woensdag 24-12-2025 om 15:08
Nijverheidsstraat, 1724VE Oudkarspel

Nieuw bedrijf
December 2025
Regthuisstraat 3, 1724SK Oudkarspel

112 melding
Woensdag 24-12-2025 om 10:56
Regthuisstraat, 1724SN Oudkarspel

112 melding
Woensdag 24-12-2025 om 10:56
Blaasjeskruid, 1724XM Oudkarspel

112 melding
Dinsdag 23-12-2025 om 07:33
Dorpsstraat, 1724RD Oudkarspel (1724 RD)

112 melding
Maandag 22-12-2025 om 20:27
Lisdodde, 1724XT Oudkarspel

112 melding
Maandag 22-12-2025 om 19:12
Dorpsstraat, 1724RD Oudkarspel (1724 RD)

Direct een e-mail ontvangen bij nieuwe meldingen in deze regio?

Meld je dan GRATIS aan voor de Oozo Alert service voor Oudkarspel

Instellen

Meer nieuws in Oudkarspel

Weten hoe eenvoudig het is om af te vallen? Zonder pillen en smeersels en zonder je in het zweet te werken!
Kijk op eenvoudig-afvallen.nl

© 2012 - 2025 OOZO.nl - info@oozo.nl - Gegevens verwijderen? | Disclaimer | Privacy statement