Woning Parallelweg 21 Sint Pancras

Parallelweg 21, 1834VE Sint Pancras

Ontvang updates voor Sint Pancras

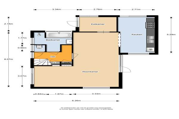
Het adres van deze woning uit 1963 is Parallelweg 21 te Sint Pancras. Het pand heeft een oppervlakte van 100m² en een perceeloppervlakte van 332m² en heeft 3 kamers kamers waarvan 2 slaapkamers. De geschatte waarde van deze woning is € 315.000.

Bekijk alle woningen in Sint Pancras

Gegevens van Eengezinswoning, vrijstaande woning

Bouwjaar
1963
Geschatte waarde
€ 315.000
Oppervlakte
100 m2
Inhoud
375 m3
Aantal kamers
3 kamers
Slaapkamers
2
Badkamers
1 badkamer en 1 apart toilet
Soort bouw
Bestaande bouw
Eigendomssituatie
Volle eigendom
Ligging
Aan rustige weg, beschutte ligging en in woonwijk
Tuin
Achtertuin, voortuin en zonneterras
Achtertuin
M² (11m diep en 8m breed)

Voorzieningen in de buurt

Boodschappen0,7 km
Grote supermarkt0,9 km
Cafetaria0,9 km
Restaurant1,0 km
Huisarts1,2 km
Ziekenhuis3,7 km
Kinderdagverblijf0,6 km
BSO0,6 km
Alle voorzieningen in Sint Pancras

Binnenkijken bij Parallelweg 21 te Sint Pancras

Meer meldingen in deze omgeving

112 melding
Donderdag 2-4-2026 om 08:46
Stuimellaan, 1834GB Sint Pancras

Binnenkijken bij
Donderdag 2-4-2026
Bovenweg 225, 1834CM Sint Pancras

112 melding
Donderdag 2-4-2026 om 00:43
Bovenweg, Sint Pancras

112 melding
Woensdag 1-4-2026 om 14:07
Stuimellaan, 1834GB Sint Pancras

112 melding
Woensdag 1-4-2026 om 13:12
De Helling, 1834DA Sint Pancras

112 melding
Woensdag 1-4-2026 om 13:00
Vangstok, 1834TS Sint Pancras

112 melding
Woensdag 1-4-2026 om 12:23
Stuimellaan, 1834GB Sint Pancras

112 melding
Woensdag 1-4-2026 om 11:42
Stuimellaan, 1834GB Sint Pancras

Direct een e-mail ontvangen bij nieuwe meldingen in deze regio?

Meld je dan GRATIS aan voor de Oozo Alert service voor Sint Pancras

Instellen

Meer nieuws in Sint Pancras

Weten hoe eenvoudig het is om af te vallen? Zonder pillen en smeersels en zonder je in het zweet te werken!
Kijk op eenvoudig-afvallen.nl

© 2012 - 2026 OOZO.nl - info@oozo.nl - Gegevens verwijderen? | Disclaimer | Privacy statement