Woning Sterrenlaan 116 Bleiswijk

Sterrenlaan 116, 2665BV Bleiswijk

Ontvang updates voor Sterrenbuurt

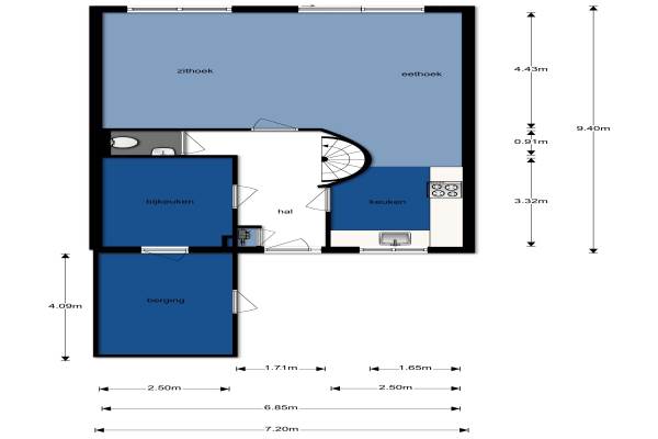
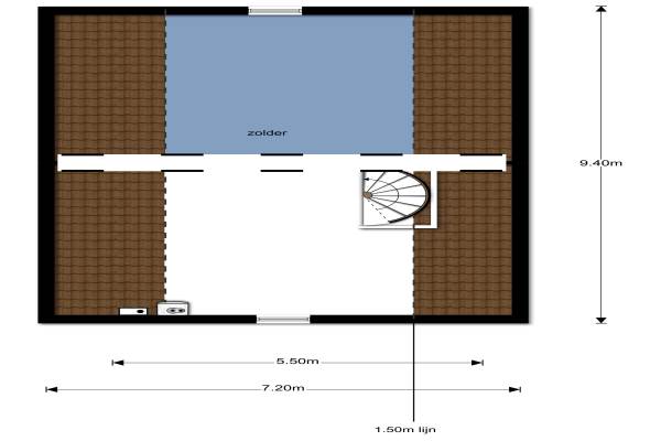
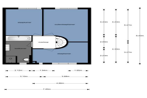
Het adres van deze woning uit 1992 is Sterrenlaan 116 te Bleiswijk. Het pand heeft een oppervlakte van 145m² en een perceeloppervlakte van 290m² en heeft 5 kamers kamers waarvan 4 slaapkamers. De geschatte waarde van deze woning is € 439.000.

Bekijk alle woningen in Sterrenbuurt

Gegevens van Eengezinswoning, hoekwoning

Bouwjaar
1992
Geschatte waarde
€ 439.000
Oppervlakte
145 m2
Inhoud
595 m3
Aantal kamers
5 kamers
Slaapkamers
4
Badkamers
1 badkamer en 1 apart toilet
Soort bouw
Bestaande bouw
Eigendomssituatie
Volle eigendom
Ligging
In woonwijk
Tuin
Achtertuin, voortuin en zijtuin
Achtertuin
120 m² (10m diep en 12m breed)

Voorzieningen in de buurt

Boodschappen1,3 km
Grote supermarkt1,4 km
Cafetaria1,3 km
Restaurant1,3 km
Huisarts0,4 km
Ziekenhuis7,8 km
Kinderdagverblijf1,3 km
BSO0,7 km
Alle voorzieningen in Sterrenbuurt

Binnenkijken bij Sterrenlaan 116 te Bleiswijk

Meer meldingen in deze omgeving

Nieuw bedrijf
Maart 2026
Grote Beer 20, 2665WL Bleiswijk

Binnenkijken bij
Vrijdag 13-3-2026
Beukenlaan 235, 2665DG Bleiswijk

112 melding
Woensdag 11-3-2026 om 22:18
Meidoornstraat, 2665DA Bleiswijk

112 melding
Woensdag 11-3-2026 om 22:18
Meidoornstraat, 2665DA Bleiswijk

112 melding
Woensdag 11-3-2026 om 22:17
Meidoornstraat, 2665DA Bleiswijk

112 melding
Woensdag 11-3-2026 om 22:17
Meidoornstraat, 2665DA Bleiswijk

112 melding
Dinsdag 10-2-2026 om 18:11
Grote Beer, 2665WK Bleiswijk

112 melding
Dinsdag 3-2-2026 om 11:53
Cederhof, 2665XM Bleiswijk

Direct een e-mail ontvangen bij nieuwe meldingen in deze regio?

Meld je dan GRATIS aan voor de Oozo Alert service voor Sterrenbuurt

Instellen

Meer nieuws in Sterrenbuurt

Weten hoe eenvoudig het is om af te vallen? Zonder pillen en smeersels en zonder je in het zweet te werken!
Kijk op eenvoudig-afvallen.nl

© 2012 - 2026 OOZO.nl - info@oozo.nl - Gegevens verwijderen? | Disclaimer | Privacy statement