Woning Anjerdreef 16 Berkel en Rodenrijs

Anjerdreef 16, 2651XS Berkel en Rodenrijs

Ontvang updates voor Parc Rodenrijs

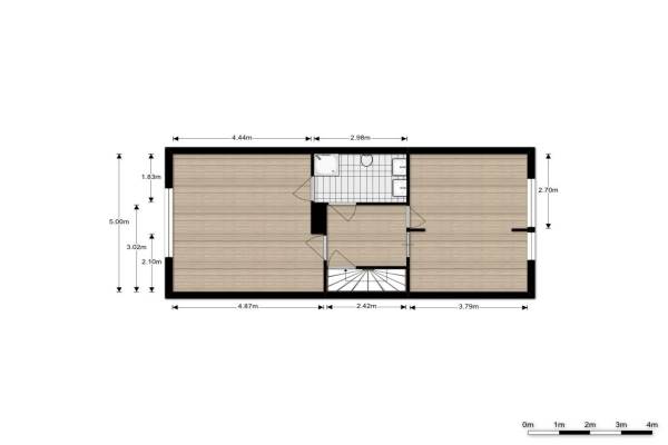
Het adres van deze woning uit 1971 is Anjerdreef 16 te Berkel en Rodenrijs. Het pand heeft een oppervlakte van 172m² en een perceeloppervlakte van 284m² en heeft 5 kamers kamers waarvan 4 slaapkamers. De geschatte waarde van deze woning is € 433.000.

Bekijk alle woningen in Parc Rodenrijs

Gegevens van Eengezinswoning, hoekwoning

Bouwjaar
1971
Geschatte waarde
€ 433.000
Oppervlakte
172 m2
Inhoud
530 m3
Aantal kamers
5 kamers
Slaapkamers
4
Badkamers
2 badkamers en 1 apart toilet
Soort bouw
Bestaande bouw
Eigendomssituatie
Volle eigendom
Ligging
In woonwijk en vrij uitzicht
Tuin
Achtertuin en voortuin
Achtertuin
99 m² (11m diep en 9m breed)

Voorzieningen in de buurt

Boodschappen1,5 km
Grote supermarkt0,7 km
Cafetaria0,9 km
Restaurant1,2 km
Huisarts1,8 km
Ziekenhuis2,0 km
Kinderdagverblijf0,7 km
BSO0,3 km
Alle voorzieningen in Parc Rodenrijs

Binnenkijken bij Anjerdreef 16 te Berkel en Rodenrijs

Meer meldingen in deze omgeving

112 melding
Zondag 7-12-2025 om 16:24
Anthuriumsingel, 2651PE Berkel en Rodenrijs

112 melding
Zondag 30-11-2025 om 13:32
Anthuriumsingel, 2651PC Berkel en Rodenrijs

Binnenkijken bij
Vrijdag 28-11-2025
Hyacinthlaan 81, 2651PM Berkel en Rodenrijs

Nieuw bedrijf
November 2025
Anthuriumsingel 104, 2651PG Berkel en Rodenrijs

Binnenkijken bij
Dinsdag 25-11-2025
Tulpplantsoen 11, 2651PZ Berkel en Rodenrijs

112 melding
Maandag 24-11-2025 om 08:56
Anthuriumsingel, 2651PD Berkel en Rodenrijs

112 melding
Vrijdag 21-11-2025 om 21:26
Rodenrijseweg, 2651BV Berkel en Rodenrijs

112 melding
Zaterdag 1-11-2025 om 13:37
Irispark, 2651PS Berkel en Rodenrijs

Direct een e-mail ontvangen bij nieuwe meldingen in deze regio?

Meld je dan GRATIS aan voor de Oozo Alert service voor Parc Rodenrijs

Instellen

Meer nieuws in Parc Rodenrijs

Weten hoe eenvoudig het is om af te vallen? Zonder pillen en smeersels en zonder je in het zweet te werken!
Kijk op eenvoudig-afvallen.nl

© 2012 - 2025 OOZO.nl - info@oozo.nl - Gegevens verwijderen? | Disclaimer | Privacy statement