Woning Keizerskroon 261 Leeuwarden

Keizerskroon 261, 8935LS Leeuwarden

Ontvang updates voor Aldlân-Oost

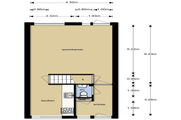
Het adres van deze woning uit 1975 is Keizerskroon 261 te Leeuwarden. Het pand heeft een oppervlakte van 111m² en een perceeloppervlakte van 123m² en heeft 5 kamers kamers waarvan 4 slaapkamers. De geschatte waarde van deze woning is € 137.500.

Bekijk alle woningen in Aldlân-Oost

Gegevens van Eengezinswoning, tussenwoning

Bouwjaar
1975
Geschatte waarde
€ 137.500
Oppervlakte
111 m2
Inhoud
391 m3
Aantal kamers
5 kamers
Slaapkamers
4
Badkamers
1 badkamer en 1 apart toilet
Soort bouw
Bestaande bouw
Eigendomssituatie
Volle eigendom
Ligging
In woonwijk en beschutte ligging
Tuin
Achtertuin en voortuin
Achtertuin
41 m² (9m diep en 4,5m breed)

Voorzieningen in de buurt

Binnenkijken bij Keizerskroon 261 te Leeuwarden

Meer meldingen in deze omgeving

Binnenkijken bij
Zaterdag 20-12-2025
Lenteklokje 97, 8935KV Leeuwarden

Binnenkijken bij
Zaterdag 13-12-2025
Poelruit 12a, 8935RD Leeuwarden

Binnenkijken bij
Zaterdag 13-12-2025
Waterbies 30, 8935PH Leeuwarden

Binnenkijken bij
Vrijdag 12-12-2025
Stinzenflora 96, 8935NM Leeuwarden

Nieuw bedrijf
December 2025
Longkruid 24, 8935PL Leeuwarden

112 melding
Zaterdag 22-11-2025 om 21:00
Maagdepalm, Leeuwarden

Nieuw bedrijf
November 2025
Maagdepalm 12, 8935NC Leeuwarden

Binnenkijken bij
Dinsdag 11-11-2025
Ereprijs 89, 8935JD Leeuwarden

Direct een e-mail ontvangen bij nieuwe meldingen in deze regio?

Meld je dan GRATIS aan voor de Oozo Alert service voor Aldlân-Oost

Instellen

Meer nieuws in Aldlân-Oost

Weten hoe eenvoudig het is om af te vallen? Zonder pillen en smeersels en zonder je in het zweet te werken!
Kijk op eenvoudig-afvallen.nl

© 2012 - 2025 OOZO.nl - info@oozo.nl - Gegevens verwijderen? | Disclaimer | Privacy statement