Woning Buorren 12 Goutum

Buorren 12, 9084BC Goutum

Ontvang updates voor Goutum

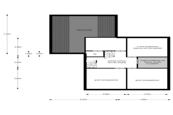
Het adres van deze woning uit 1976 is Buorren 12 te Goutum. Het pand heeft een oppervlakte van 190m² en een perceeloppervlakte van 643m² en heeft 7 kamers kamers waarvan 5 slaapkamers. De geschatte waarde van deze woning is € 445.000.

Bekijk alle woningen in Goutum

Gegevens van Herenhuis, vrijstaande woning

Bouwjaar
1976
Geschatte waarde
€ 445.000
Oppervlakte
190 m2
Inhoud
750 m3
Aantal kamers
7 kamers
Slaapkamers
5
Badkamers
2 badkamers en 1 apart toilet
Soort bouw
Bestaande bouw
Eigendomssituatie
Volle eigendom
Tuin
Achtertuin en voortuin
Achtertuin
378 m² (27m diep en 14m breed)

Voorzieningen in de buurt

Binnenkijken bij Buorren 12 te Goutum

Meer meldingen in deze omgeving

Binnenkijken bij
Zaterdag 13-12-2025
Meinteslân 7, 9084EJ Goutum

Binnenkijken bij
Vrijdag 12-12-2025
Gerbrigslân 1, 9084EE Goutum

Nieuw bedrijf
December 2025
de Pleats 18, 9084DT Goutum

Nieuw bedrijf
December 2025
Wergeasterdyk 1, 9084AS Goutum

Binnenkijken bij
Woensdag 3-12-2025
Wetterkrite 22, 9084DM Goutum

Binnenkijken bij
Dinsdag 2-12-2025
Haven 4, 9084BD Goutum

Binnenkijken bij
Vrijdag 28-11-2025
Oer de feart 14, 9084BN Goutum

Nieuw bedrijf
November 2025
Hounsdyk 2, 9084BV Goutum

Direct een e-mail ontvangen bij nieuwe meldingen in deze regio?

Meld je dan GRATIS aan voor de Oozo Alert service voor Goutum

Instellen

Meer nieuws in Goutum

Weten hoe eenvoudig het is om af te vallen? Zonder pillen en smeersels en zonder je in het zweet te werken!
Kijk op eenvoudig-afvallen.nl

© 2012 - 2025 OOZO.nl - info@oozo.nl - Gegevens verwijderen? | Disclaimer | Privacy statement