Woning Kievitstraat 48 Grou

Kievitstraat 48, 9001EP Grou

Ontvang updates voor Grou

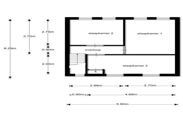
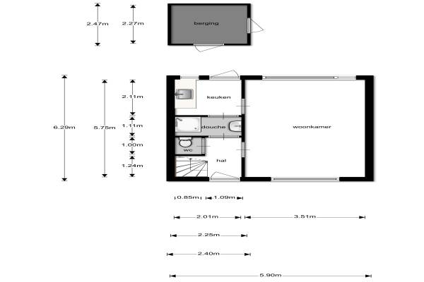
Het adres van deze woning uit 1961 is Kievitstraat 48 te Grou. Het pand heeft een oppervlakte van 65m² en een perceeloppervlakte van 175m² en heeft 4 kamers kamers waarvan 3 slaapkamers. De geschatte waarde van deze woning is € 99.000.

Bekijk alle woningen in Grou

Gegevens van Eengezinswoning, tussenwoning

Bouwjaar
1961
Geschatte waarde
€ 99.000
Oppervlakte
65 m2
Inhoud
231 m3
Aantal kamers
4 kamers
Slaapkamers
3
Badkamers
1 badkamer en 1 apart toilet
Soort bouw
Bestaande bouw
Eigendomssituatie
Volle eigendom
Ligging
In woonwijk
Tuin
Achtertuin en voortuin
Achtertuin
105 m² (17,5m diep en 6m breed)

Voorzieningen in de buurt

Boodschappen1,1 km
Grote supermarkt1,1 km
Cafetaria1,1 km
Restaurant3,4 km
Huisarts1,2 km
Ziekenhuis3,1 km
Kinderdagverblijf1,7 km
BSO1,2 km
Alle voorzieningen in Grou

Binnenkijken bij Kievitstraat 48 te Grou

Meer meldingen in deze omgeving

Nieuw bedrijf
November 2025
De Tuorrebout 12, 9001GT Grou

Nieuw bedrijf
November 2025
Kievitstraat 20, 9001EN Grou

Onroerend goed
Woensdag 19-11-2025
It Moleln 6, 9001XS Grou

112 melding
Dinsdag 18-11-2025 om 13:36
Oedsmawei, Grou

Binnenlands nieuws
Maandag 17-11-2025
Grou

112 melding
Maandag 17-11-2025 om 07:55
Grou

Binnenkijken bij
Vrijdag 14-11-2025
Mr. Pieter Jelles Troelstrawei 47, 9001CT Grou

Nieuw bedrijf
November 2025
Raadhuisstraat 18, 9001AG Grou

Direct een e-mail ontvangen bij nieuwe meldingen in deze regio?

Meld je dan GRATIS aan voor de Oozo Alert service voor Grou

Instellen

Meer nieuws in Grou

Weten hoe eenvoudig het is om af te vallen? Zonder pillen en smeersels en zonder je in het zweet te werken!
Kijk op eenvoudig-afvallen.nl

© 2012 - 2025 OOZO.nl - info@oozo.nl - Gegevens verwijderen? | Disclaimer | Privacy statement