Woning 1e Oosterveldstraat 28 Grou

1e Oosterveldstraat 28, 9001BL Grou

Ontvang updates voor Grou

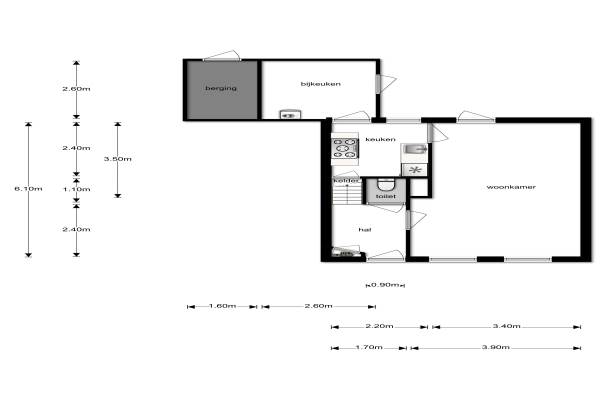
Het adres van deze woning uit 1914 is 1e Oosterveldstraat 28 te Grou. Het pand heeft een oppervlakte van 62m² en een perceeloppervlakte van 147m² en heeft 2 kamers kamers waarvan 1 slaapkamers. De geschatte waarde van deze woning is € 157.500.

Bekijk alle woningen in Grou

Gegevens van Eengezinswoning, hoekwoning

Bouwjaar
1914
Geschatte waarde
€ 157.500
Oppervlakte
62 m2
Inhoud
170 m3
Aantal kamers
2 kamers
Slaapkamers
1
Badkamers
1 apart toilet
Soort bouw
Bestaande bouw
Eigendomssituatie
Volle eigendom
Ligging
Aan rustige weg, in centrum en in woonwijk
Tuin
Achtertuin
Achtertuin
47 m² (5,2m diep en 9m breed)

Voorzieningen in de buurt

Boodschappen1,1 km
Grote supermarkt1,1 km
Cafetaria1,1 km
Restaurant3,4 km
Huisarts1,2 km
Ziekenhuis3,1 km
Kinderdagverblijf1,7 km
BSO1,2 km
Alle voorzieningen in Grou

Binnenkijken bij 1e Oosterveldstraat 28 te Grou

Meer meldingen in deze omgeving

112 melding
Maandag 20-4-2026 om 19:32
Oostergoostraat, Grou

Nieuw bedrijf
April 2026
De Skou 20, 9001JE Grou

Nieuw bedrijf
April 2026
Parkstraat 26b, 9001AT Grou

Nieuw bedrijf
April 2026
Roerdompstraat 20, 9001EX Grou

Nieuw bedrijf
April 2026
Parkstraat 26b, 9001AT Grou

Nieuw bedrijf
April 2026
Raadhuisstraat 7, 9001AG Grou

Nieuw bedrijf
April 2026
De Skou 20, 9001JE Grou

Nieuw bedrijf
April 2026
Mr. Pieter Jelles Troelstrawei 20030, 9001CV Grou

Direct een e-mail ontvangen bij nieuwe meldingen in deze regio?

Meld je dan GRATIS aan voor de Oozo Alert service voor Grou

Instellen

Meer nieuws in Grou

Weten hoe eenvoudig het is om af te vallen? Zonder pillen en smeersels en zonder je in het zweet te werken!
Kijk op eenvoudig-afvallen.nl

© 2012 - 2026 OOZO.nl - info@oozo.nl - Gegevens verwijderen? | Disclaimer | Privacy statement