Woning Wiardastraat 30 Leeuwarden

Wiardastraat 30, 8934AR Leeuwarden

Ontvang updates voor Huizum-Bornia

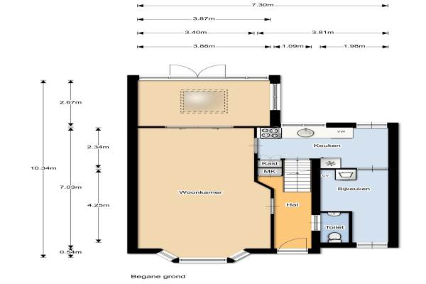
Het adres van deze woning uit 1935 is Wiardastraat 30 te Leeuwarden. Het pand heeft een oppervlakte van 97m² en een perceeloppervlakte van 185m² en heeft 4 kamers kamers waarvan 3 slaapkamers. De geschatte waarde van deze woning is € 159.500.

Bekijk alle woningen in Huizum-Bornia

Gegevens van Eengezinswoning, vrijstaande woning

Bouwjaar
1935
Geschatte waarde
€ 159.500
Oppervlakte
97 m2
Inhoud
369 m3
Aantal kamers
4 kamers
Slaapkamers
3
Badkamers
1 badkamer en 1 apart toilet
Soort bouw
Bestaande bouw
Eigendomssituatie
Volle eigendom
Ligging
Aan rustige weg en in woonwijk
Tuin
Achtertuin en voortuin
Achtertuin
104 m² (13m diep en 8m breed)

Voorzieningen in de buurt

Binnenkijken bij Wiardastraat 30 te Leeuwarden

Meer meldingen in deze omgeving

Binnenkijken bij
Woensdag 7-1-2026
Verlengde Schrans 73, 8932NK Leeuwarden

Binnenkijken bij
Zaterdag 3-1-2026
van Wageningenstraat 1, 8934CG Leeuwarden

Nieuw bedrijf
Januari 2026
Jansoniusstraat 37, 8934BM Leeuwarden

112 melding
Vrijdag 19-12-2025 om 14:07
Doniastraat, Leeuwarden

112 melding
Zondag 14-12-2025 om 06:27
Jansoniusstraat, 8934BM Leeuwarden

112 melding
Zondag 14-12-2025 om 06:27
Jansoniusstraat, 8934BM Leeuwarden

112 melding
Zondag 14-12-2025 om 06:16
Jansoniusstraat, 8934BM Leeuwarden

112 melding
Zondag 14-12-2025 om 06:16
Jansoniusstraat, 8934BM Leeuwarden

Direct een e-mail ontvangen bij nieuwe meldingen in deze regio?

Meld je dan GRATIS aan voor de Oozo Alert service voor Huizum-Bornia

Instellen

Meer nieuws in Huizum-Bornia

Weten hoe eenvoudig het is om af te vallen? Zonder pillen en smeersels en zonder je in het zweet te werken!
Kijk op eenvoudig-afvallen.nl

© 2012 - 2026 OOZO.nl - info@oozo.nl - Gegevens verwijderen? | Disclaimer | Privacy statement