Woning Papaverstraat 9 Leeuwarden

Papaverstraat 9, 8922CE Leeuwarden

Ontvang updates voor Oldegalileën

Het adres van deze woning uit 1930 is Papaverstraat 9 te Leeuwarden. Het pand heeft een oppervlakte van 71m² en een perceeloppervlakte van 115m² en heeft 5 kamers kamers waarvan 3 slaapkamers. De geschatte waarde van deze woning is € 173.000.

Bekijk alle woningen in Oldegalileën

Gegevens van Eengezinswoning, tussenwoning

Bouwjaar
1930
Geschatte waarde
€ 173.000
Oppervlakte
71 m2
Inhoud
308 m3
Aantal kamers
5 kamers
Slaapkamers
3
Soort bouw
Bestaande bouw
Eigendomssituatie
Volle eigendom
Ligging
Aan rustige weg en in woonwijk
Tuin
Achtertuin en voortuin
Achtertuin
5 m² (10 meter diep en 0,45 meter breed)

Voorzieningen in de buurt

Boodschappen0,3 km
Grote supermarkt0,7 km
Cafetaria0,5 km
Restaurant0,5 km
Huisarts0,3 km
Ziekenhuis3,0 km
Kinderdagverblijf0,5 km
BSO0,4 km
Alle voorzieningen in Oldegalileën

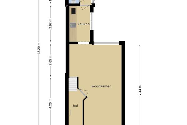
Binnenkijken bij Papaverstraat 9 te Leeuwarden

Meer meldingen in deze omgeving

Nieuw bedrijf
December 2025
Oldegalileën 83, 8922AC Leeuwarden

Nieuw bedrijf
December 2025
Pioenstraat 13, 8922BX Leeuwarden

Nieuw bedrijf
December 2025
Papaverstraat 17, 8922CE Leeuwarden

Binnenkijken bij
Dinsdag 25-11-2025
Papaverstraat 38, 8922CH Leeuwarden

Binnenkijken bij
Dinsdag 18-11-2025
Leliestraat 25, 8922BN Leeuwarden

Binnenkijken bij
Zondag 16-11-2025
Groningerstraatweg 25, 8922EZ Leeuwarden

112 melding
Vrijdag 14-11-2025 om 22:45
Akeleistraat, 8922BL Leeuwarden

112 melding
Vrijdag 14-11-2025 om 18:43
Groningerstraat, 8922AR Leeuwarden

Direct een e-mail ontvangen bij nieuwe meldingen in deze regio?

Meld je dan GRATIS aan voor de Oozo Alert service voor Oldegalileën

Instellen

Meer nieuws in Oldegalileën

Weten hoe eenvoudig het is om af te vallen? Zonder pillen en smeersels en zonder je in het zweet te werken!
Kijk op eenvoudig-afvallen.nl

© 2012 - 2025 OOZO.nl - info@oozo.nl - Gegevens verwijderen? | Disclaimer | Privacy statement