Woning Groningerplein 8 Leeuwarden

Groningerplein 8, 8921NL Leeuwarden

Ontvang updates voor Cambuursterpad

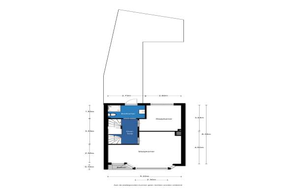
Het adres van deze woning uit 1936 is Groningerplein 8 te Leeuwarden. Het pand heeft een oppervlakte van 144m² en een perceeloppervlakte van 183m² en heeft 6 kamers kamers waarvan 4 slaapkamers. De geschatte waarde van deze woning is € 250.000.

Bekijk alle woningen in Cambuursterpad

Gegevens van Herenhuis, hoekwoning

Bouwjaar
1936
Geschatte waarde
€ 250.000
Oppervlakte
144 m2
Inhoud
548 m3
Aantal kamers
6 kamers
Slaapkamers
4
Badkamers
1 badkamer en 1 apart toilet
Soort bouw
Bestaande bouw
Eigendomssituatie
Volle eigendom
Ligging
In woonwijk, vrij uitzicht en beschutte ligging
Tuin
Achtertuin en voortuin
Achtertuin
50 m² (9m diep en 5,5m breed)

Voorzieningen in de buurt

Boodschappen0,6 km
Grote supermarkt0,6 km
Cafetaria0,6 km
Restaurant0,6 km
Huisarts2,0 km
Ziekenhuis4,7 km
Kinderdagverblijf0,7 km
BSO1,1 km
Alle voorzieningen in Cambuursterpad

Binnenkijken bij Groningerplein 8 te Leeuwarden

Meer meldingen in deze omgeving

Binnenkijken bij
Dinsdag 30-12-2025
Tjerk Hiddesstraat 64, 8921NS Leeuwarden

Nieuw bedrijf
December 2025
Bleeklaan 73, 8921GZ Leeuwarden

Binnenkijken bij
Woensdag 24-12-2025
Bleeklaan 45, 8921GX Leeuwarden

Nieuw bedrijf
December 2025
Bleeklaan 29, 8921GW Leeuwarden

Nieuw bedrijf
December 2025
Cambuursterpad 212, 8921LW Leeuwarden

112 melding
Woensdag 10-12-2025 om 16:37
Camminghaburg, 8921PH Leeuwarden

Binnenkijken bij
Woensdag 10-12-2025
Camminghastraat 36, 8921PJ Leeuwarden

Binnenkijken bij
Donderdag 4-12-2025
Tjerk Hiddesstraat 26, 8921NP Leeuwarden

Direct een e-mail ontvangen bij nieuwe meldingen in deze regio?

Meld je dan GRATIS aan voor de Oozo Alert service voor Cambuursterpad

Instellen

Meer nieuws in Cambuursterpad

Weten hoe eenvoudig het is om af te vallen? Zonder pillen en smeersels en zonder je in het zweet te werken!
Kijk op eenvoudig-afvallen.nl

© 2012 - 2025 OOZO.nl - info@oozo.nl - Gegevens verwijderen? | Disclaimer | Privacy statement