Woning Cambuursterpad 1 Leeuwarden

Cambuursterpad 1, 8921LP Leeuwarden

Ontvang updates voor Cambuursterpad

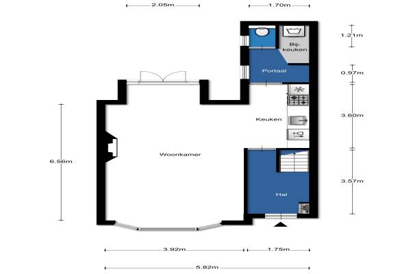
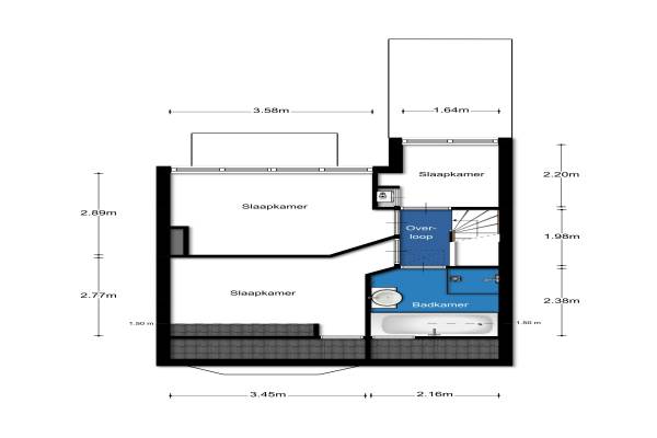
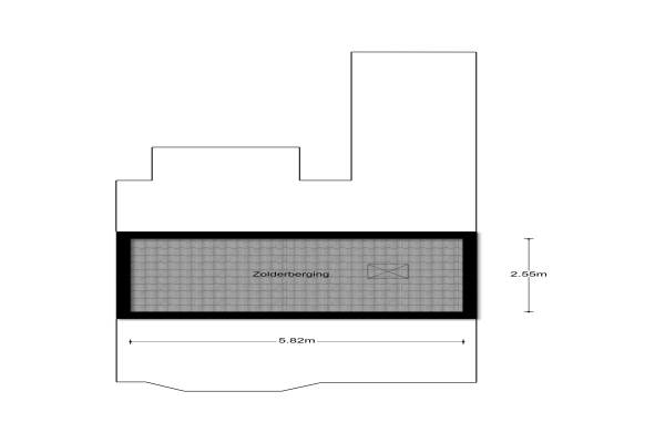
Het adres van deze woning uit 1935 is Cambuursterpad 1 te Leeuwarden. Het pand heeft een oppervlakte van 82m² en een perceeloppervlakte van 109m² en heeft 4 kamers kamers waarvan 3 slaapkamers. De geschatte waarde van deze woning is € 175.000.

Bekijk alle woningen in Cambuursterpad

Gegevens van Eengezinswoning, 2-onder-1-kapwoning

Bouwjaar
1935
Geschatte waarde
€ 175.000
Oppervlakte
82 m2
Inhoud
262 m3
Aantal kamers
4 kamers
Slaapkamers
3
Badkamers
1 badkamer en 1 apart toilet
Soort bouw
Bestaande bouw
Eigendomssituatie
Gemeentelijk eigendom belast met erfpacht (einddatum erfpacht: 31-12-2030)
Ligging
Aan rustige weg, in centrum en in woonwijk
Tuin
Achtertuin en voortuin
Achtertuin
30 m² (7,5m diep en 4m breed)

Voorzieningen in de buurt

Boodschappen0,6 km
Grote supermarkt0,6 km
Cafetaria0,6 km
Restaurant0,6 km
Huisarts2,0 km
Ziekenhuis4,7 km
Kinderdagverblijf0,7 km
BSO1,1 km
Alle voorzieningen in Cambuursterpad

Binnenkijken bij Cambuursterpad 1 te Leeuwarden

Meer meldingen in deze omgeving

112 melding
Vrijdag 14-11-2025 om 18:44
Hoeksterpoort, 8921GC Leeuwarden

Binnenkijken bij
Vrijdag 14-11-2025
de Ruyterweg 29, 8921KJ Leeuwarden

Binnenkijken bij
Vrijdag 14-11-2025
Bleeklaan 35, 8921GW Leeuwarden

112 melding
Woensdag 12-11-2025 om 14:27
Tjerk Hiddesstraat, Leeuwarden

112 melding
Dinsdag 11-11-2025 om 17:30
Camminghaburg, 8921PH Leeuwarden

Nieuw bedrijf
November 2025
Sontdwarsstraat 10, 8921KV Leeuwarden

112 melding
Maandag 10-11-2025 om 17:01
Camminghaburg, 8921PH Leeuwarden

112 melding
Zondag 2-11-2025 om 11:55
Jacob Binckesstraat, Cambuursterpad

Direct een e-mail ontvangen bij nieuwe meldingen in deze regio?

Meld je dan GRATIS aan voor de Oozo Alert service voor Cambuursterpad

Instellen

Meer nieuws in Cambuursterpad

Weten hoe eenvoudig het is om af te vallen? Zonder pillen en smeersels en zonder je in het zweet te werken!
Kijk op eenvoudig-afvallen.nl

© 2012 - 2025 OOZO.nl - info@oozo.nl - Gegevens verwijderen? | Disclaimer | Privacy statement