Woning Camperstraat 9 Leeuwarden

Camperstraat 9, 8921VH Leeuwarden

Ontvang updates voor Zamenhofpark

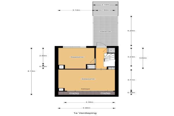
Het adres van deze woning uit 1930 is Camperstraat 9 te Leeuwarden. Het pand heeft een oppervlakte van 111m² en een perceeloppervlakte van 115m² en heeft 4 kamers kamers waarvan 3 slaapkamers. De geschatte waarde van deze woning is € 117.500.

Bekijk alle woningen in Zamenhofpark

Gegevens van Eengezinswoning, eindwoning

Bouwjaar
1930
Geschatte waarde
€ 117.500
Oppervlakte
111 m2
Inhoud
402 m3
Aantal kamers
4 kamers
Slaapkamers
3
Badkamers
1 badkamer en 1 apart toilet
Soort bouw
Bestaande bouw
Eigendomssituatie
Volle eigendom
Ligging
In woonwijk
Tuin
Achtertuin en voortuin
Achtertuin
18 m² (6m diep en 3m breed)

Voorzieningen in de buurt

Boodschappen1,5 km
Grote supermarkt1,6 km
Cafetaria1,6 km
Restaurant1,6 km
Huisarts1,2 km
Ziekenhuis4,9 km
Kinderdagverblijf0,5 km
BSO1,4 km
Alle voorzieningen in Zamenhofpark

Binnenkijken bij Camperstraat 9 te Leeuwarden

Meer meldingen in deze omgeving

Nieuw bedrijf
November 2025
Groningerstraatweg 122, 8921TV Leeuwarden

Binnenkijken bij
Dinsdag 18-11-2025
Pieter Pauwstraat 1, 8921VK Leeuwarden

Binnenkijken bij
Zaterdag 15-11-2025
Schapestraat 16, 8921PN Leeuwarden

Binnenkijken bij
Vrijdag 14-11-2025
van Beverwijckstraat 26, 8921VE Leeuwarden

Binnenkijken bij
Dinsdag 11-11-2025
Groningerstraatweg 116, 8921TV Leeuwarden

Nieuw bedrijf
November 2025
Reinier de Graafstraat 20, 8921RB Leeuwarden

112 melding
Woensdag 5-11-2025 om 16:47
Pasteurweg, Leeuwarden

Binnenkijken bij
Zondag 19-10-2025
Groningerstraatweg 136, 8921TV Leeuwarden

Direct een e-mail ontvangen bij nieuwe meldingen in deze regio?

Meld je dan GRATIS aan voor de Oozo Alert service voor Zamenhofpark

Instellen

Meer nieuws in Zamenhofpark

Weten hoe eenvoudig het is om af te vallen? Zonder pillen en smeersels en zonder je in het zweet te werken!
Kijk op eenvoudig-afvallen.nl

© 2012 - 2025 OOZO.nl - info@oozo.nl - Gegevens verwijderen? | Disclaimer | Privacy statement