Woning Jelsumerstraat 29 Leeuwarden

Jelsumerstraat 29, 8917EL Leeuwarden

Ontvang updates voor Bonifatius

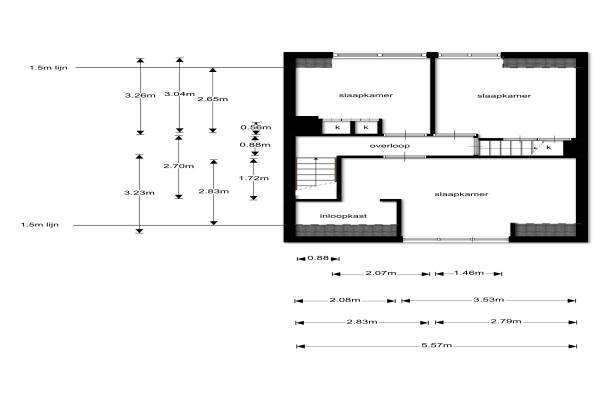
Het adres van deze woning uit 1930 is Jelsumerstraat 29 te Leeuwarden. Het pand heeft een oppervlakte van 95m² en een perceeloppervlakte van 176m² en heeft 5 kamers kamers waarvan 4 slaapkamers. De geschatte waarde van deze woning is € 189.500.

Bekijk alle woningen in Bonifatius

Gegevens van Eengezinswoning, eindwoning

Bouwjaar
1930
Geschatte waarde
€ 189.500
Oppervlakte
95 m2
Inhoud
300 m3
Aantal kamers
5 kamers
Slaapkamers
4
Badkamers
1 badkamer en 1 apart toilet
Soort bouw
Bestaande bouw
Eigendomssituatie
Volle eigendom
Ligging
In woonwijk
Tuin
Achtertuin en voortuin
Achtertuin
70 m² (15m diep en 6m breed)

Voorzieningen in de buurt

Boodschappen0,3 km
Grote supermarkt0,6 km
Cafetaria0,3 km
Restaurant0,6 km
Huisarts0,7 km
Ziekenhuis3,3 km
Kinderdagverblijf0,4 km
BSO0,3 km
Alle voorzieningen in Bonifatius

Binnenkijken bij Jelsumerstraat 29 te Leeuwarden

Meer meldingen in deze omgeving

112 melding
Maandag 20-4-2026 om 13:36
Bonnehosstraat, 8917HA Leeuwarden

Nieuw bedrijf
April 2026
Valkstraat 24, 8917EH Leeuwarden

Nieuw bedrijf
April 2026
Lijsterstraat 40, 8917EB Leeuwarden

Nieuw bedrijf
April 2026
Mr. P.J. Troelstraweg 42, 8917CN Leeuwarden

Binnenkijken bij
Woensdag 8-4-2026
Lijsterstraat 68, 8917EC Leeuwarden

Binnenkijken bij
Zaterdag 28-2-2026
Lijsterstraat 26, 8917EA Leeuwarden

Binnenkijken bij
Vrijdag 27-2-2026
Lijsterstraat 50, 8917EB Leeuwarden

Binnenkijken bij
Zondag 1-2-2026
Lijsterstraat 30, 8917EA Leeuwarden

Direct een e-mail ontvangen bij nieuwe meldingen in deze regio?

Meld je dan GRATIS aan voor de Oozo Alert service voor Bonifatius

Instellen

Meer nieuws in Bonifatius

Weten hoe eenvoudig het is om af te vallen? Zonder pillen en smeersels en zonder je in het zweet te werken!
Kijk op eenvoudig-afvallen.nl

© 2012 - 2026 OOZO.nl - info@oozo.nl - Gegevens verwijderen? | Disclaimer | Privacy statement