Woning Dekemawei 8 Jelsum

Dekemawei 8, 9057LC Jelsum

Ontvang updates voor Jelsum

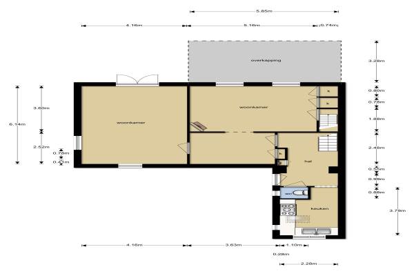
Het adres van deze woning uit 1954 is Dekemawei 8 te Jelsum. Het pand heeft een oppervlakte van 119m² en een perceeloppervlakte van 1068m² en heeft 5 kamers kamers waarvan 2 slaapkamers. De geschatte waarde van deze woning is € 259.500.

Bekijk alle woningen in Jelsum

Gegevens van Eengezinswoning, 2-onder-1-kapwoning

Bouwjaar
1954
Geschatte waarde
€ 259.500
Oppervlakte
119 m2
Inhoud
480 m3
Aantal kamers
5 kamers
Slaapkamers
2
Badkamers
1 badkamer en 1 apart toilet
Soort bouw
Bestaande bouw
Eigendomssituatie
Volle eigendom
Ligging
Vrij uitzicht, beschutte ligging en landelijk gelegen
Tuin
Achtertuin en voortuin
Achtertuin
788 m² (63m diep en 12,5m breed)

Voorzieningen in de buurt

Binnenkijken bij Dekemawei 8 te Jelsum

Meer meldingen in deze omgeving

112 melding
Zondag 8-3-2026 om 11:32
Langhústerdyk & Brédyk, 9057 Jelsum

Binnenlands nieuws
Vrijdag 6-3-2026
Jelsum

Binnenlands nieuws
Vrijdag 6-3-2026
Jelsum

Binnenkijken bij
Vrijdag 9-1-2026
Brédyk 20, 9057RC Jelsum

Binnenlands nieuws
Zondag 20-7-2025
Jelsum

Nieuw bedrijf
Juli 2025
Dekemawei 3, 9057LC Jelsum

Nieuw bedrijf
Juli 2025
Dekemawei 3, 9057LC Jelsum

Binnenkijken bij
Zondag 15-6-2025
Hoatse de Jongstrjitte 10, 9057RK Jelsum

Direct een e-mail ontvangen bij nieuwe meldingen in deze regio?

Meld je dan GRATIS aan voor de Oozo Alert service voor Jelsum

Instellen

Meer nieuws in Jelsum

Weten hoe eenvoudig het is om af te vallen? Zonder pillen en smeersels en zonder je in het zweet te werken!
Kijk op eenvoudig-afvallen.nl

© 2012 - 2026 OOZO.nl - info@oozo.nl - Gegevens verwijderen? | Disclaimer | Privacy statement