Woning Oude Rijn 36 Leiden

Oude Rijn 36, 2312HG Leiden

Ontvang updates voor Marewijk

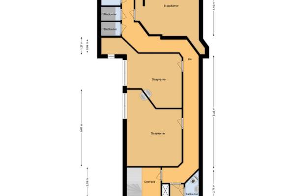
Het adres van deze woning uit 1825 is Oude Rijn 36 te Leiden. Het pand heeft een oppervlakte van 580m² en een perceeloppervlakte van 170m² en heeft 16 kamers kamers waarvan 14 slaapkamers. De geschatte waarde van deze woning is € 1.250.000.

Bekijk alle woningen in Marewijk

Gegevens van Grachtenpand, geschakelde woning

Bouwjaar
1825
Geschatte waarde
€ 1.250.000
Oppervlakte
580 m2
Inhoud
1838 m3
Aantal kamers
16 kamers
Slaapkamers
14
Badkamers
3 aparte toiletten
Soort bouw
Bestaande bouw
Eigendomssituatie
Volle eigendom
Ligging
Aan vaarwater, aan water en in centrum

Voorzieningen in de buurt

Boodschappen0,1 km
Grote supermarkt0,3 km
Cafetaria0,1 km
Restaurant0,1 km
Huisarts0,5 km
Ziekenhuis1,8 km
Kinderdagverblijf0,4 km
BSO0,6 km
Alle voorzieningen in Marewijk

Binnenkijken bij Oude Rijn 36 te Leiden

Meer meldingen in deze omgeving

112 melding
Zaterdag 9-5-2026 om 14:27
Janvossensteeg, Leiden

Binnenkijken bij
Dinsdag 5-5-2026
Vollersgracht 33, 2312VK Leiden

Binnenkijken bij
Dinsdag 5-5-2026
Haarlemmerstraat 266, 2312GL Leiden

Binnenkijken bij
Dinsdag 5-5-2026
Van der Werfstraat 60, 2312VX Leiden

Binnenkijken bij
Dinsdag 5-5-2026
Duizenddraadsteeg 3F, 2312VT Leiden

112 melding
Maandag 4-5-2026 om 23:36
Mirakelsteeg, 2312WG Leiden

112 melding
Maandag 4-5-2026 om 14:18
Sint Janshof, 2312GX Leiden

112 melding
Maandag 4-5-2026 om 13:55
Hekkensteeg, 2312MT Leiden

Direct een e-mail ontvangen bij nieuwe meldingen in deze regio?

Meld je dan GRATIS aan voor de Oozo Alert service voor Marewijk

Instellen

Meer nieuws in Marewijk

Weten hoe eenvoudig het is om af te vallen? Zonder pillen en smeersels en zonder je in het zweet te werken!
Kijk op eenvoudig-afvallen.nl

© 2012 - 2026 OOZO.nl - info@oozo.nl - Gegevens verwijderen? | Disclaimer | Privacy statement