Woning Dankmeijerpad 223 Leiden

Dankmeijerpad 223, 2333BS Leiden

Ontvang updates voor Pesthuiswijk

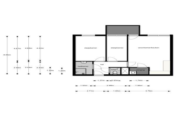
Het adres van deze woning uit 2017 is Dankmeijerpad 223 te Leiden. Het pand heeft een oppervlakte van 60m² en heeft 3 kamers kamers waarvan 2 slaapkamers. De geschatte waarde van deze woning is € 275.000.

Bekijk alle woningen in Pesthuiswijk

Gegevens van Portiekflat (appartement)

Bouwjaar
2017
Geschatte waarde
€ 275.000
Oppervlakte
60 m2
Inhoud
204 m3
Aantal kamers
3 kamers
Slaapkamers
2
Badkamers
1 badkamer en 1 apart toilet
Soort bouw
Bestaande bouw
Eigendomssituatie
Volle eigendom
Ligging
Aan park, aan rustige weg, in centrum en vrij uitzicht

Voorzieningen in de buurt

Boodschappen1,2 km
Grote supermarkt1,1 km
Cafetaria0,5 km
Restaurant0,6 km
Huisarts0,8 km
Ziekenhuis0,7 km
Kinderdagverblijf0,5 km
BSO0,6 km
Alle voorzieningen in Pesthuiswijk

Binnenkijken bij Dankmeijerpad 223 te Leiden

Meer meldingen in deze omgeving

112 melding
Woensdag 3-12-2025 om 20:23
Einthovenweg, 2333ZC Leiden

112 melding
Woensdag 3-12-2025 om 19:24
Einthovenweg, 2333ZC Leiden

112 melding
Woensdag 3-12-2025 om 18:53
Einthovenweg, 2333ZC Leiden

112 melding
Woensdag 3-12-2025 om 17:40
Einthovenweg, 2333ZC Leiden

112 melding
Woensdag 3-12-2025 om 17:40
Einthovenweg, 2333ZC Leiden

112 melding
Woensdag 3-12-2025 om 14:52
Einthovenweg, 2333ZC Leiden

112 melding
Woensdag 3-12-2025 om 14:33
Einthovenweg, 2333ZC Leiden

112 melding
Woensdag 3-12-2025 om 14:32
Brugmansplein, 2333ZE Leiden

Direct een e-mail ontvangen bij nieuwe meldingen in deze regio?

Meld je dan GRATIS aan voor de Oozo Alert service voor Pesthuiswijk

Instellen

Meer nieuws in Pesthuiswijk

Weten hoe eenvoudig het is om af te vallen? Zonder pillen en smeersels en zonder je in het zweet te werken!
Kijk op eenvoudig-afvallen.nl

© 2012 - 2025 OOZO.nl - info@oozo.nl - Gegevens verwijderen? | Disclaimer | Privacy statement