Woning Jacques Urlusplantsoen 286 Leiden

Jacques Urlusplantsoen 286, 2324LE Leiden

Ontvang updates voor Boshuizen

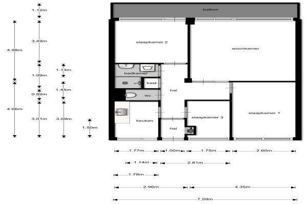
Het adres van deze woning uit 1965 is Jacques Urlusplantsoen 286 te Leiden. Het pand heeft een oppervlakte van 71m² en heeft 4 kamers kamers waarvan 3 slaapkamers. De geschatte waarde van deze woning is € 150.000.

Bekijk alle woningen in Boshuizen

Gegevens van Galerijflat (appartement)

Bouwjaar
1965
Geschatte waarde
€ 150.000
Oppervlakte
71 m2
Inhoud
231 m3
Aantal kamers
4 kamers
Slaapkamers
3
Badkamers
1 badkamer en 1 apart toilet
Soort bouw
Bestaande bouw
Eigendomssituatie
Volle eigendom
Ligging
In woonwijk en vrij uitzicht

Voorzieningen in de buurt

Boodschappen0,5 km
Grote supermarkt1,0 km
Cafetaria1,0 km
Restaurant0,6 km
Huisarts0,4 km
Ziekenhuis2,7 km
Kinderdagverblijf0,5 km
BSO0,6 km
Alle voorzieningen in Boshuizen

Binnenkijken bij Jacques Urlusplantsoen 286 te Leiden

Meer meldingen in deze omgeving

Nieuw bedrijf
November 2025
Jacques Urlusplantsoen 195, 2324KV Leiden

Nieuw bedrijf
November 2025
Johannes Verhulststraat 15, 2324VG Leiden

Nieuw bedrijf
November 2025
Peter van Anrooystraat 28, 2324XC Leiden

Binnenkijken bij
Maandag 17-11-2025
Valeriusstraat 204, 2324XL Leiden

Binnenkijken bij
Vrijdag 14-11-2025
Peter van Anrooystraat 57, 2324XB Leiden

Binnenkijken bij
Vrijdag 14-11-2025
Glenn Millerstraat 7, 2324LN Leiden

Nieuw bedrijf
November 2025
Haagweg 186, 2324NA Leiden

Binnenkijken bij
Dinsdag 11-11-2025
Duke Ellingtonstraat 10, 2324LA Leiden

Direct een e-mail ontvangen bij nieuwe meldingen in deze regio?

Meld je dan GRATIS aan voor de Oozo Alert service voor Boshuizen

Instellen

Meer nieuws in Boshuizen

Weten hoe eenvoudig het is om af te vallen? Zonder pillen en smeersels en zonder je in het zweet te werken!
Kijk op eenvoudig-afvallen.nl

© 2012 - 2025 OOZO.nl - info@oozo.nl - Gegevens verwijderen? | Disclaimer | Privacy statement