Woning Ravelstraat 10 Leiden

Ravelstraat 10, 2324XZ Leiden

Ontvang updates voor Fortuinwijk-Noord

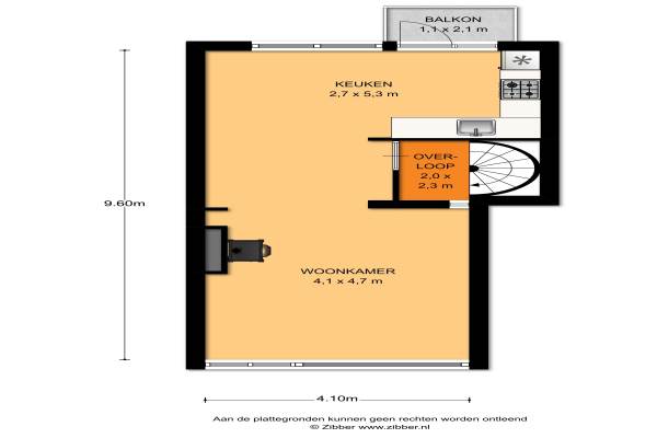
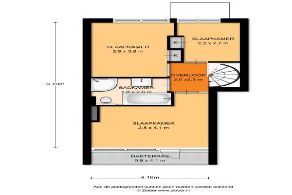
Het adres van deze woning uit 1962 is Ravelstraat 10 te Leiden. Het pand heeft een oppervlakte van 112m² en een perceeloppervlakte van 120m² en heeft 7 kamers kamers waarvan 4 slaapkamers. De geschatte waarde van deze woning is € 275.000.

Bekijk alle woningen in Fortuinwijk-Noord

Gegevens van Eengezinswoning, tussenwoning

Bouwjaar
1962
Geschatte waarde
€ 275.000
Oppervlakte
112 m2
Inhoud
415 m3
Aantal kamers
7 kamers
Slaapkamers
4
Badkamers
1 badkamer en 1 apart toilet
Soort bouw
Bestaande bouw
Eigendomssituatie
Volle eigendom
Ligging
Aan park
Tuin
Achtertuin en voortuin
Achtertuin
40 m² (8m diep en 5m breed)

Voorzieningen in de buurt

Boodschappen0,4 km
Grote supermarkt0,5 km
Cafetaria0,5 km
Restaurant0,4 km
Huisarts0,4 km
Ziekenhuis3,5 km
Kinderdagverblijf0,4 km
BSO0,8 km
Alle voorzieningen in Fortuinwijk-Noord

Binnenkijken bij Ravelstraat 10 te Leiden

Meer meldingen in deze omgeving

112 melding
Dinsdag 23-12-2025 om 18:14
Bizetpad, Leiden

112 melding
Maandag 22-12-2025 om 13:12
Bartókstraat, Leiden

112 melding
Maandag 22-12-2025 om 10:27
Bizetpad, Leiden

112 melding
Maandag 22-12-2025 om 02:29
Corellistraat, Leiden

112 melding
Zaterdag 20-12-2025 om 12:39
Bizetpad, Leiden

112 melding
Zaterdag 20-12-2025 om 12:38
Bizetpad, Leiden

112 melding
Zaterdag 20-12-2025 om 12:38
Bizetpad, Leiden

112 melding
Zaterdag 20-12-2025 om 12:38
Bizetpad, Leiden

Direct een e-mail ontvangen bij nieuwe meldingen in deze regio?

Meld je dan GRATIS aan voor de Oozo Alert service voor Fortuinwijk-Noord

Instellen

Meer nieuws in Fortuinwijk-Noord

Weten hoe eenvoudig het is om af te vallen? Zonder pillen en smeersels en zonder je in het zweet te werken!
Kijk op eenvoudig-afvallen.nl

© 2012 - 2025 OOZO.nl - info@oozo.nl - Gegevens verwijderen? | Disclaimer | Privacy statement