Woning Brucknerstraat 23 Leiden

Brucknerstraat 23, 2324KK Leiden

Ontvang updates voor Fortuinwijk-Noord

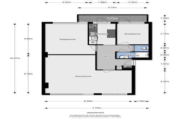
Het adres van deze woning uit 1960 is Brucknerstraat 23 te Leiden. Het pand heeft een oppervlakte van 75m² en heeft 4 kamers kamers waarvan 2 slaapkamers. De geschatte waarde van deze woning is € 197.500.

Bekijk alle woningen in Fortuinwijk-Noord

Gegevens van Portiekflat (appartement)

Bouwjaar
1960
Geschatte waarde
€ 197.500
Oppervlakte
75 m2
Inhoud
240 m3
Aantal kamers
4 kamers
Slaapkamers
2
Badkamers
1 badkamer en 1 apart toilet
Soort bouw
Bestaande bouw
Eigendomssituatie
Volle eigendom
Ligging
Aan rustige weg, in centrum, in woonwijk en vrij uitzicht

Voorzieningen in de buurt

Boodschappen0,4 km
Grote supermarkt0,5 km
Cafetaria0,5 km
Restaurant0,4 km
Huisarts0,4 km
Ziekenhuis3,5 km
Kinderdagverblijf0,4 km
BSO0,8 km
Alle voorzieningen in Fortuinwijk-Noord

Binnenkijken bij Brucknerstraat 23 te Leiden

Meer meldingen in deze omgeving

Binnenkijken bij
Woensdag 8-4-2026
Bachstraat 450, 2324GZ Leiden

Binnenkijken bij
Maandag 6-4-2026
Eduard van Beinumstraat 49, 2324KM Leiden

112 melding
Zondag 5-4-2026 om 21:39
Bartókstraat, Leiden

112 melding
Zondag 5-4-2026 om 01:45
Eduard van Beinumstraat, Leiden

Binnenkijken bij
Dinsdag 31-3-2026
Verdistraat 183, 2324KD Leiden

112 melding
Zondag 29-3-2026 om 05:43
Rigolettohof, 2324DM Leiden

112 melding
Zaterdag 28-3-2026 om 08:08
Verdistraat, Leiden

112 melding
Vrijdag 27-3-2026 om 09:09
Bizetpad, Leiden

Direct een e-mail ontvangen bij nieuwe meldingen in deze regio?

Meld je dan GRATIS aan voor de Oozo Alert service voor Fortuinwijk-Noord

Instellen

Meer nieuws in Fortuinwijk-Noord

Weten hoe eenvoudig het is om af te vallen? Zonder pillen en smeersels en zonder je in het zweet te werken!
Kijk op eenvoudig-afvallen.nl

© 2012 - 2026 OOZO.nl - info@oozo.nl - Gegevens verwijderen? | Disclaimer | Privacy statement