Woning Apollolaan 130 Leiden

Apollolaan 130, 2324BV Leiden

Ontvang updates voor Fortuinwijk-Zuid

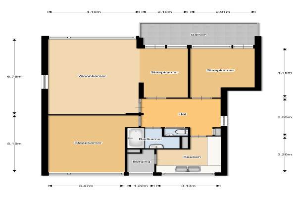
Het adres van deze woning uit 1972 is Apollolaan 130 te Leiden. Het pand heeft een oppervlakte van 100m² en heeft 4 kamers kamers waarvan 2 slaapkamers. De geschatte waarde van deze woning is € 259.000.

Bekijk alle woningen in Fortuinwijk-Zuid

Gegevens van Portiekflat (appartement)

Bouwjaar
1972
Geschatte waarde
€ 259.000
Oppervlakte
100 m2
Inhoud
320 m3
Aantal kamers
4 kamers
Slaapkamers
2
Badkamers
1 apart toilet
Soort bouw
Bestaande bouw
Eigendomssituatie
Volle eigendom
Ligging
Aan water, aan rustige weg, in woonwijk en vrij uitzicht

Voorzieningen in de buurt

Boodschappen0,5 km
Grote supermarkt0,5 km
Cafetaria0,5 km
Restaurant0,6 km
Huisarts0,6 km
Ziekenhuis4,1 km
Kinderdagverblijf0,5 km
BSO1,4 km
Alle voorzieningen in Fortuinwijk-Zuid

Binnenkijken bij Apollolaan 130 te Leiden

Meer meldingen in deze omgeving

112 melding
Maandag 6-10-2025 om 13:30
Apollolaan, Leiden

112 melding
Maandag 6-10-2025 om 04:29
Apollolaan, Leiden

112 melding
Maandag 6-10-2025 om 00:30
Apollolaan, Leiden

112 melding
Zaterdag 4-10-2025 om 09:15
Apollolaan, Leiden

112 melding
Zaterdag 4-10-2025 om 00:34
Apollotoren, 2324DR Leiden

112 melding
Dinsdag 30-9-2025 om 18:06
Joseph Haydnlaan, Leiden

Binnenkijken bij
Dinsdag 30-9-2025
Joseph Haydnlaan 25, 2324AP Leiden

Binnenkijken bij
Dinsdag 30-9-2025
Apollolaan 208, 2324BW Leiden

Direct een e-mail ontvangen bij nieuwe meldingen in deze regio?

Meld je dan GRATIS aan voor de Oozo Alert service voor Fortuinwijk-Zuid

Instellen

Meer nieuws in Fortuinwijk-Zuid

Weten hoe eenvoudig het is om af te vallen? Zonder pillen en smeersels en zonder je in het zweet te werken!
Kijk op eenvoudig-afvallen.nl

© 2012 - 2025 OOZO.nl - info@oozo.nl - Gegevens verwijderen? | Disclaimer | Privacy statement