Woning Jacob van Campenlaan 36 Leiden

Jacob van Campenlaan 36, 2321GD Leiden

Ontvang updates voor Gasthuiswijk

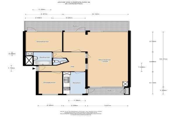
Het adres van deze woning uit 1970 is Jacob van Campenlaan 36 te Leiden. Het pand heeft een oppervlakte van 100m² en heeft 3 kamers kamers waarvan 2 slaapkamers. De geschatte waarde van deze woning is € 185.000.

Bekijk alle woningen in Gasthuiswijk

Gegevens van Portiekflat (appartement)

Bouwjaar
1970
Geschatte waarde
€ 185.000
Oppervlakte
100 m2
Inhoud
320 m3
Aantal kamers
3 kamers
Slaapkamers
2
Badkamers
1 badkamer en 1 apart toilet
Soort bouw
Bestaande bouw
Ligging
In woonwijk

Voorzieningen in de buurt

Boodschappen0,4 km
Grote supermarkt0,4 km
Cafetaria0,4 km
Restaurant0,5 km
Huisarts0,5 km
Ziekenhuis3,5 km
Kinderdagverblijf0,4 km
BSO1,3 km
Alle voorzieningen in Gasthuiswijk

Binnenkijken bij Jacob van Campenlaan 36 te Leiden

Meer meldingen in deze omgeving

112 melding
Woensdag 5-11-2025 om 13:57
Berlagestraat, Leiden

112 melding
Maandag 3-11-2025 om 23:17
Delftse Jaagpad, 2324AA Leiden

112 melding
Zondag 2-11-2025 om 20:27
Jacob van Campenlaan, Leiden

112 melding
Zaterdag 1-11-2025 om 09:59
Rosenburch, Leiden

112 melding
Woensdag 29-10-2025 om 19:13
Vijf Meiplein, Leiden

112 melding
Woensdag 29-10-2025 om 19:08
Van Randwijkstraat, Leiden

Binnenkijken bij
Woensdag 29-10-2025
Vijf Meiplein 120, 2321BS Leiden

Binnenkijken bij
Woensdag 29-10-2025
Bevrijdingsplein 26, 2321BW Leiden

Direct een e-mail ontvangen bij nieuwe meldingen in deze regio?

Meld je dan GRATIS aan voor de Oozo Alert service voor Gasthuiswijk

Instellen

Meer nieuws in Gasthuiswijk

Weten hoe eenvoudig het is om af te vallen? Zonder pillen en smeersels en zonder je in het zweet te werken!
Kijk op eenvoudig-afvallen.nl

© 2012 - 2025 OOZO.nl - info@oozo.nl - Gegevens verwijderen? | Disclaimer | Privacy statement